Aller au contenu principal

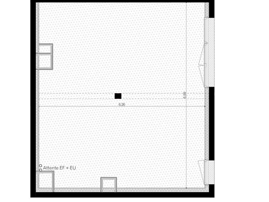
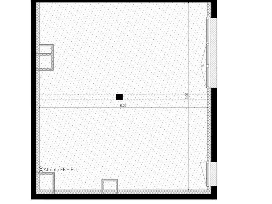
Achat Bureau pièce(s) 42 m2

135 000 €
Vitré
(
35500
)
6011-BL1

En vous inscrivant sur le site du cabinet Moraine vous bénéficierez de nombreux services complémentaires. L'inscription est totalement gratuite et ne vous engage rien.

Se connecter
42m²
Surface

Présentation du bien

VITRE - local bureau de 42.59m² - rez-de-chaussée - stationnement privatif
Idéalement situé à seulement 650 mètres de la gare, ce bureau bénéficie d'un emplacement privilégié, à proximité immédiate des commerces et des commodités. Niché au rez-de-chaussée d'une résidence moderne répondant aux dernières normes en vigueur, il offre un cadre de travail confortable et fonctionnel. Un stationnement sécurisé en sous-sol est mis à votre disposition. Proposé au prix promoteur avec des frais de notaire réduits, ce bien constitue une excellente opportunité. Les informations sur les risques auxquels ce bien est exposé sont disponibles sur le site Géorisques : www.georisques.gouv.fr.
Photos non contractuelles, suggestions d'aménagements
Copropriété de 32 lots - dont 30 lots habitation. (Pas de procédure en cours).

Charges annuelles : 633 euros.

Dépenses énergétiques

A B C D E F G logement très performant logement extrêmement peu performant Non requis
A B C D E F G emissions de CO₂ très importantes peu d'émission de CO₂ Non requis

Localisation du bien

Contactez-nous

Contactez un conseiller par téléphone ou
laissez-nous un message via notre formulaire.

02 99 32 43 86

Simulation financière
Montant de votre prêt Montant du prêt
Durée de votre prêt Durée du prêt
Taux d'intérêt avant négociation Taux d'intérêts
Montant du prêt
Durée du prêt
Mensualités

 Recharger Contactez-nous

Biens similaires

A B C D E F G logement très performant logement extrêmement peu performant Non requis
A B C D E F G emissions de CO₂ très importantes peu d'émission de CO₂ Non requis
Affichage :