Achat Appartement 2 pièce(s) 47 m2
En vous inscrivant sur le site du cabinet Moraine vous bénéficierez de nombreux services complémentaires. L'inscription est totalement gratuite et ne vous engage rien.
Se connecterPrésentation du bien
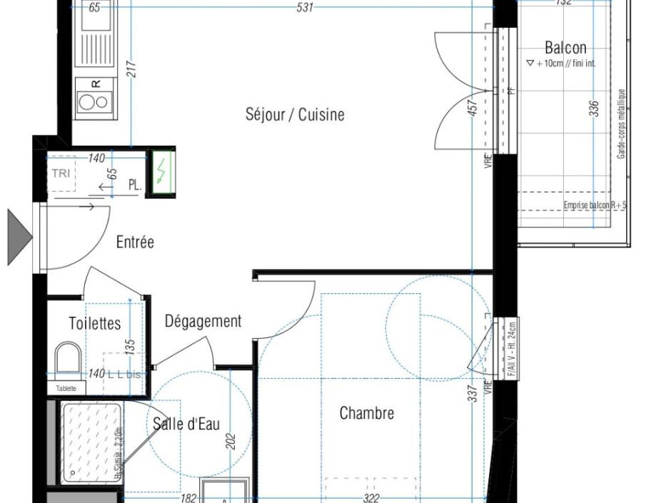
RENNES - Gayeulles / Jeanne d'Arc - Appartement 2 pièces de 47.14m² - 4ème étage - ascenseur - balcon de 4.46m² - stationnement en sous-sol sécurisé.
Situé dans le quartier Jeanne d'Arc, proche des Gayeulles, ce charmant deux-pièces profite d'un emplacement privilégié, à deux pas du métro, permettant de rejoindre rapidement le centre-ville (Sainte-Anne en 10 minutes, Gare de Rennes en 15 minutes). Proche des commerces, écoles et transports en commun, Situé au 4ème étage avec ascenseur, cet appartement de 47.14 m² comprend une entrée avec placard, un séjour salon avec cuisine ouverte donnant sur un balcon de 4.46 m²,  une chambre, une salle d'eau et wc indépendant. Une place de stationnement sécurisée en sous-sol est incluse. Atout supplémentaire : le chauffage est assuré par le réseau de chaleur urbain, une solution à la fois économique et écologique.  Prix taux de tva 5.5% - conditions nous consulter.
N'attendez plus, contactez-nous dès maintenant pour en savoir plus et réserver votre futur appartement ! Prix promoteur - Les informations sur les risques auxquels ce bien est exposé sont disponibles sur le site Géorisques : www.georisques.gouv.fr. Photos non contractuelles - Suggestions d'aménagements
Copropriété de 43 lots - dont 43 lots habitation. (Pas de procédure en cours).
Charges annuelles : 691 euros.
Dépenses énergétiques
Localisation du bien
Contactez-nous
          Contactez un conseiller par téléphone ou
          laissez-nous un message via notre formulaire.
        
 
 
 
 
 
 
 
 
