Aller au contenu principal

Achat Maison 5 pièce(s) 118 m2

415 000 €
Chantepie
(
35135
)
6203-8-M2

En vous inscrivant sur le site du cabinet Moraine vous bénéficierez de nombreux services complémentaires. L'inscription est totalement gratuite et ne vous engage rien.

Se connecter
5
Rooms
4
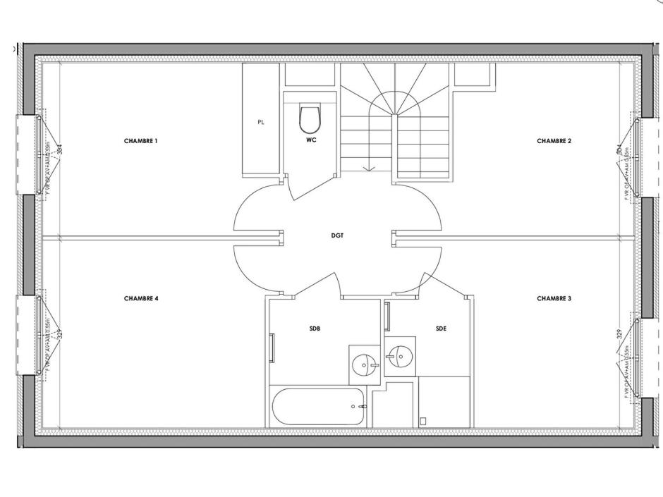
Chambre(s)
1
Salle(s) de bain
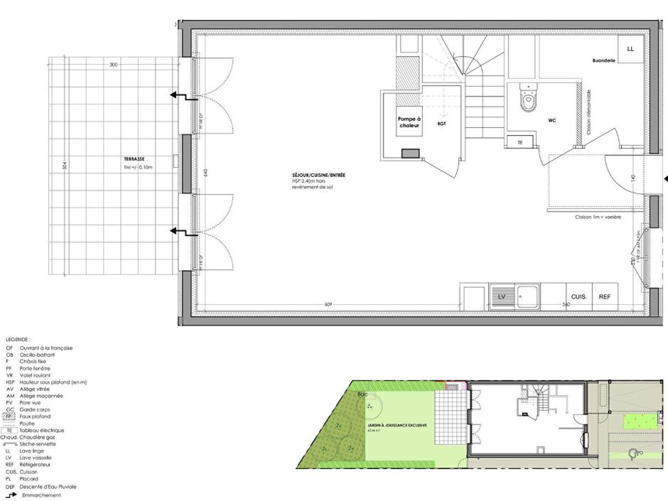
118m²
Surface

Présentation du bien

CHANTEPIE - Maison 5 pièces - 118.38m² - Sud - terrasse et jardin 62.46 m² - stationnements
Située à seulement 12 minutes du centre-ville de Rennes, et à seulement 1.3kms du centre de Chantepie, proche des commerces, services, écoles, transports en commun (bus et accès rapide à la rocade rennaise), espaces verts et infrastructures sportives.. dans un environnement résidentiel, maison de 5 pièces de 118.38m² exposé plein Sud, comprenant : une entrée, vaste séjour salon de 50m² avec cuisine ouverte, accès à une terrasse et un jardin, buanderie, rangement, wc indépendant. à l'étage, dégagement, 4 chambres, salle de bains, salle d'eau, wc indépendant. wc indépendant. Carport, local vélos fermé et stationnements. Conçue pour être économe en énergie, cette maison bénéficie d'une pompe à chaleur, garantissant un confort optimal tout en réduisant votre consommation énergétique. Profitez du nouveau PTZ 2025 et concrétisez votre rêve de propriété dès aujourd'hui ! Prix promoteur - frais de notaire réduits - Les informations sur les risques auxquels ce bien est exposé sont disponibles sur le site Géorisques : www.georisques.gouv.fr. Photos non contractuelles - Suggestions d'aménagements

Dépenses énergétiques

A B C D E F G logement très performant logement extrêmement peu performant Non requis
A B C D E F G emissions de CO₂ très importantes peu d'émission de CO₂ Non requis

Localisation du bien

Contactez-nous

Contactez un conseiller par téléphone ou
laissez-nous un message via notre formulaire.

02 99 32 43 86

Simulation financière
Montant de votre prêt Montant du prêt
Durée de votre prêt Durée du prêt
Taux d'intérêt avant négociation Taux d'intérêts
Montant du prêt
Durée du prêt
Mensualités

 Recharger Contactez-nous

Biens similaires

A B C D E F G logement très performant logement extrêmement peu performant Non requis
A B C D E F G emissions de CO₂ très importantes peu d'émission de CO₂ Non requis
Affichage :