Achat Appartement 3 pièce(s) 62 m2
En vous inscrivant sur le site du cabinet Moraine vous bénéficierez de nombreux services complémentaires. L'inscription est totalement gratuite et ne vous engage rien.
Se connecterPrésentation du bien
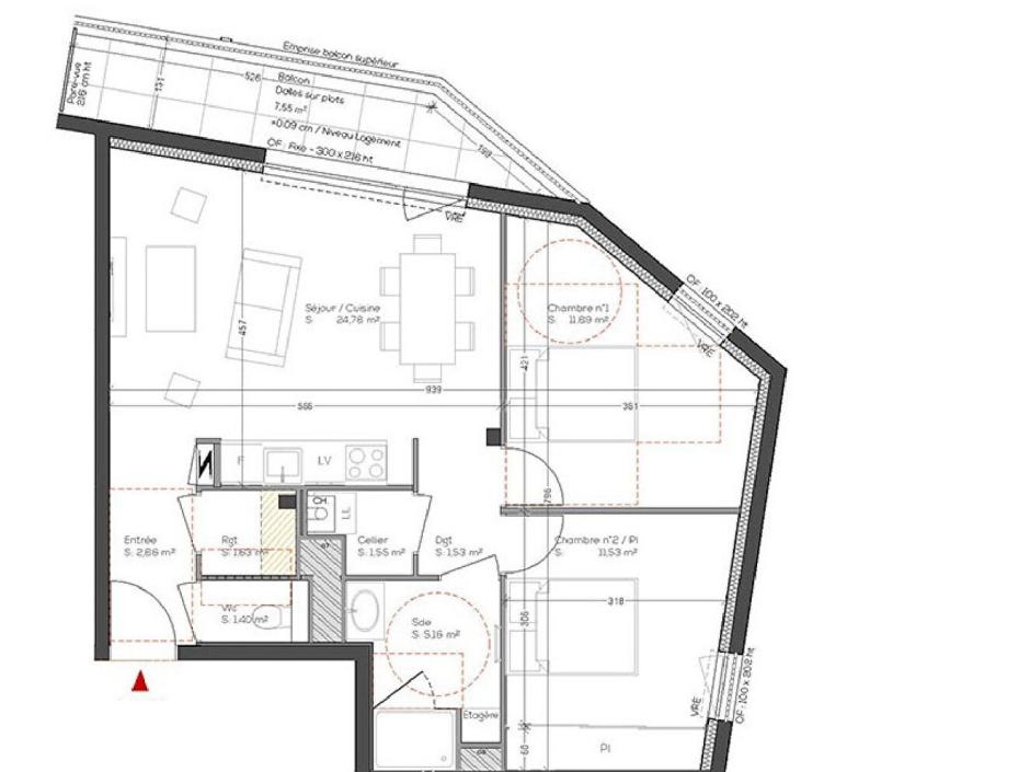
VANNES - Appartement 3 pièces 3ème étage - Ouest - 62.33m² - ascenseur - balcon 7.55m² - stationnement en sous-sol sécurisé - local vélo - FRAIS DE NOTAIRE OFFERTS
Au sein d'une résidence contemporaine aux dernières normes RT2020, proche d'un parc, des commodités.., non loin du centre de Vannes, au 3ème étage, avec ascenseur, appartement 3 pièces de 62.33m² comprenant : une entrée, rangement, séjour salon avec cuisine ouverte donnant accès au balcon de 7.55m², 2 chambres, une salle d'eau, un wc indépendant. Stationnement en sous-sol sécurisé - local vélo.
Prix promoteur - Les informations sur les risques auxquels ce bien est exposé sont disponibles sur le site Géorisques : www.georisques.gouv.fr. Photos non contractuelles - Suggestions d'aménagements
Copropriété de 22 lots - dont 19 lots habitation.
Charges annuelles : 900 euros.
Dépenses énergétiques
Localisation du bien
Contactez-nous
Contactez un conseiller par téléphone ou
laissez-nous un message via notre formulaire.