Skip to main content

Buy Apartment 3 room(s) 62 m2

321 000 €
Vannes
(
56000
)
59799-34

By registering on Cabinet Moraine website, you will benefit from numerous additional services. Registration is completely free and does not commit you to anything.

Log in
3
Rooms
2
Bedrooms
62m²
Surface

Property description

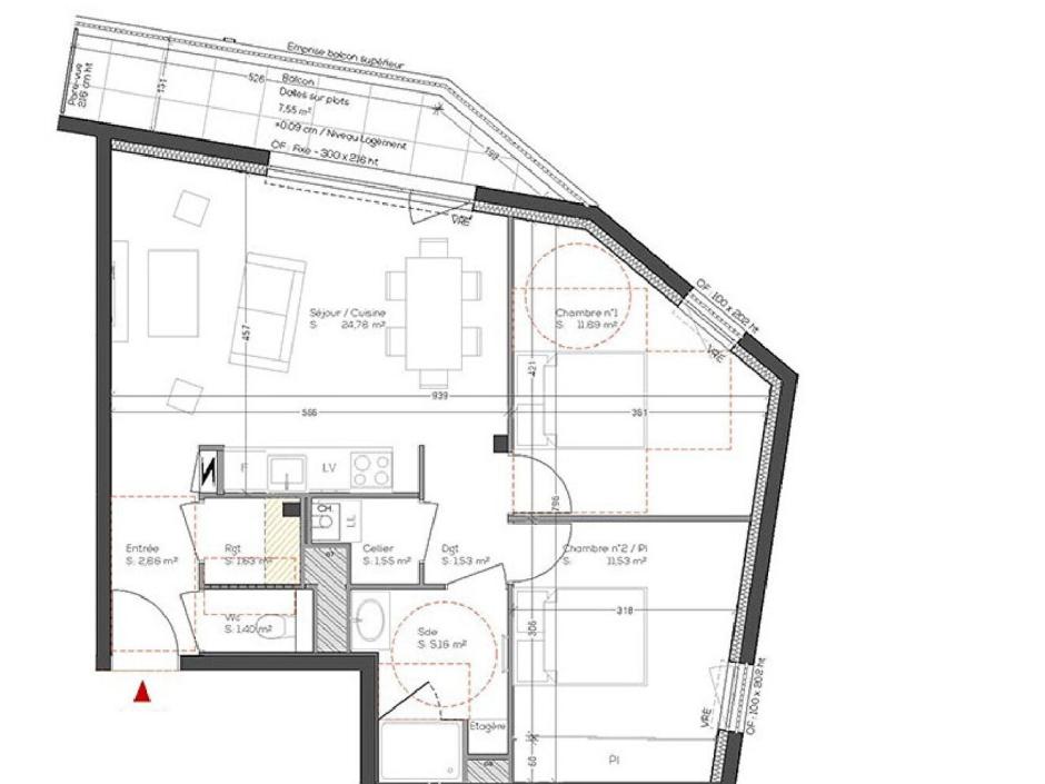
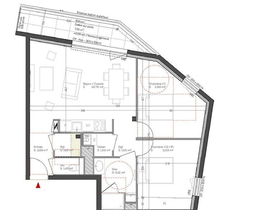
VANNES - 3-room apartment 3rd floor - West - 62.33sqm - elevator - 7.55sqm balcony - secure underground parking - bicycle storage In a contemporary residence meeting the latest RT2020 standards, close to a park, amenities, etc., not far from the center of Vannes, on the 3rd floor, with elevator, 3-room apartment of 62.33sqm comprising: an entrance hall, storage, living room with open kitchen giving access to the 7.55sqm balcony, 2 bedrooms, a shower room, a separate toilet. Secure underground parking - bicycle storage. Promoter price - reduced notary fees - Information on the risks to which this property is exposed is available on the Géorisques website: www.georisques.gouv.fr. Non-contractual photos - Suggestions for layouts
Condominiums of 22 units (No proceedings in progress). Annual expenses : 900 euros.

Energy expenditure

A B C D E F G high performance housing extremely inefficient housing Not required
A B C D E F G very high CO2 emissions low CO2 emissions Not required

Location of property

Contactez-nous

Contact an advisor by phone or
leave us a message by filling the form

02 99 32 43 86

Financial simulation
Your loan amount Loan amount
Your loan period Loan period
Interest rate before negotiation Interest rates
Loan amount
Loan period
Monthly payments

 Reload Contact us

Biens similaires

A B C D E F G high performance housing extremely inefficient housing Not required
A B C D E F G very high CO2 emissions low CO2 emissions Not required
Affichage :