Skip to main content

Buy Apartment 3 room(s) 66 m2

345 000 €
La Richardais
(
35780
)
61292-A303

By registering on Cabinet Moraine website, you will benefit from numerous additional services. Registration is completely free and does not commit you to anything.

Log in
3
Rooms
2
Bedrooms
1
Bathroom
66m²
Surface

Property description

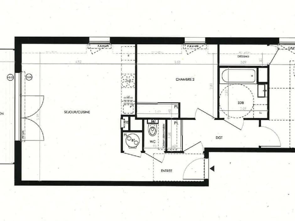
La Richardais - 2-bedroom apartment of 66.15sqm West-facing - 2nd floor - 8.40sqm balcony - private parking. Located in La Richardais, this apartment enjoys a prime location on the banks of the Rance River, in close proximity to Saint-Malo and Dinard, offering a practical and pleasant living environment with all essential shops and services within easy reach. Within a small, contemporary residence, this 2-bedroom apartment, located on the 2nd floor with elevator access, offers 66.15sqm of living space and comprises an entrance hall, a bright living room with an open-plan kitchen opening onto an 8.40sqm balcony, a hallway with a built-in wardrobe, two bedrooms (one with a dressing room and the other with a built-in wardrobe), a bathroom, and a separate WC. Private parking is included. Whether for year-round living, as a second home, or for rental investment, this property presents an excellent opportunity. Advantages: a peaceful setting between land and sea, walks along the Rance River, a marina, nearby beaches, and a full range of amenities: local shops, a local market, a daycare center, schools, a library, sports facilities, and a sailing club. Developer pricing - reduced notary fees - high energy performance. Information on the risks to which this property is exposed is available on the Géorisques website: www.georisques.gouv.fr. Photos are not contractual - Layout suggestions
Condominiums of 17 units (No proceedings in progress). Annual expenses : 1008 euros.

Energy expenditure

A B C D E F G high performance housing extremely inefficient housing Not required
A B C D E F G very high CO2 emissions low CO2 emissions Not required

Location of property

Contactez-nous

Contact an advisor by phone or
leave us a message by filling the form

02 99 32 43 86

Financial simulation
Your loan amount Loan amount
Your loan period Loan period
Interest rate before negotiation Interest rates
Loan amount
Loan period
Monthly payments

 Reload Contact us

Biens similaires

A B C D E F G high performance housing extremely inefficient housing Not required
A B C D E F G very high CO2 emissions low CO2 emissions Not required
Affichage :