Achat Appartement 3 pièce(s) 70 m2
En vous inscrivant sur le site du cabinet Moraine vous bénéficierez de nombreux services complémentaires. L'inscription est totalement gratuite et ne vous engage rien.
Se connecterPrésentation du bien
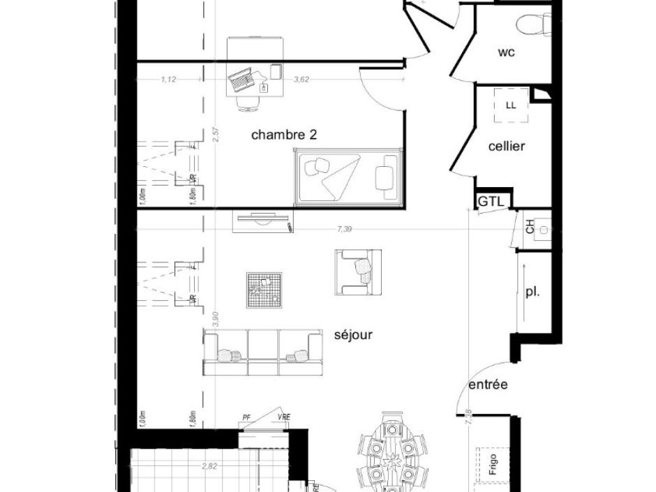
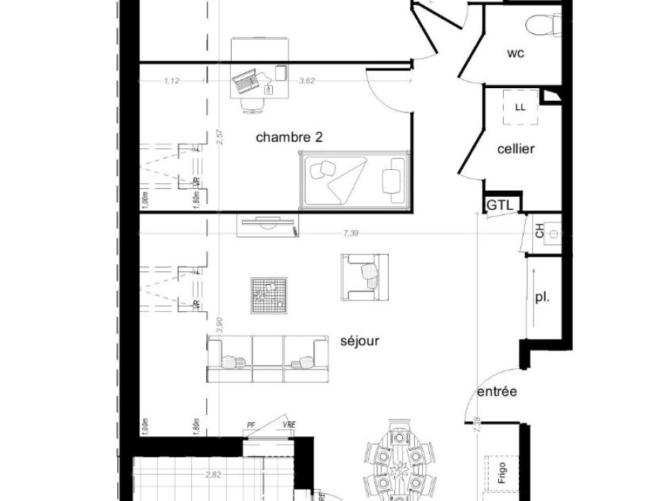
Vezin le Coquet - Appartement 3 pièces 70.23m² Ouest - 3ème étage - terrasse 9.76m² - stationnements privatifs sécurisés.
A seulement 6 km du centre de Rennes, Vezin le Coquet dispose d'un réseau de transports efficace, grâce aux bus du réseau Star et à la piste cyclable REV (Rennes Express Vélo). Idéalement situé au sein d' une résidence moderne au calme, à proximité des commerces, des écoles et commodités, appartement 3 pièces de 70.23m² exposé à l'Ouest, situé au 3ème étage avec ascenseur, comprenant : un séjour salon avec cuisine ouverte donnant accès à une terrasse de 9.76m², dégagement avec placard, deux chambres, une salle d'eau, wc indépendant, cellier. Stationnements privatifs en sous-sol sécurisés. Promoteur - frais de notaire réduits - Normes RE2020 garantissant de faibles consommations énergétiques. Les informations sur les risques auxquels ce bien est exposé sont disponibles sur le site Géorisques : www.georisques.gouv.fr
Copropriété de 49 lots - dont 49 lots habitation.
Charges annuelles : 1008 euros.
Dépenses énergétiques
Localisation du bien
Contactez-nous
Contactez un conseiller par téléphone ou
laissez-nous un message via notre formulaire.