Buy Apartment 3 room(s) 70 m2
By registering on Cabinet Moraine website, you will benefit from numerous additional services. Registration is completely free and does not commit you to anything.
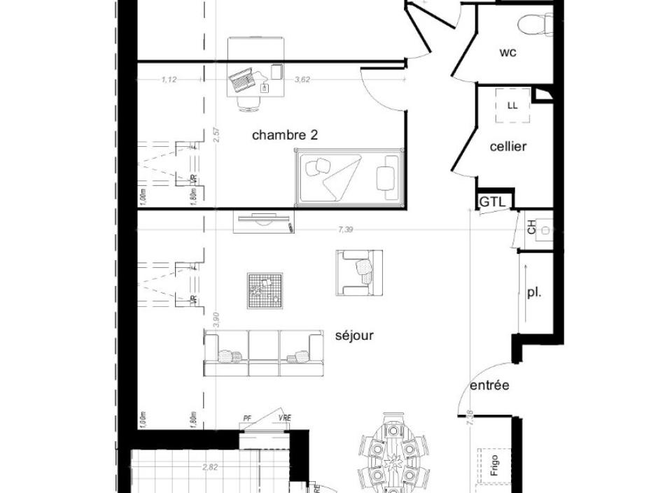
Log inProperty description
Vezin le Coquet - 2-bedroom apartment, 70.23 sq m, west-facing, 3rd floor, 9.76 sq m terrace, secure private parking. Just 6 km from the center of Rennes, Vezin le Coquet benefits from an efficient transport network, thanks to the Star bus network and the REV (Rennes Express Vélo) cycle path. Ideally located in a quiet, modern residence, close to shops, schools, and amenities, this 2-bedroom apartment of 70.23 sq m faces west and is situated on the 3rd floor with elevator access. It comprises a living room with an open-plan kitchen leading onto a 9.76 sq m terrace, a hallway with a built-in wardrobe, two bedrooms, a shower room, a separate toilet, and a storage room. Secure private parking is included in the basement. Developer - reduced notary fees - compliant with RE2020 standards guaranteeing low energy consumption. Information on the risks to which this property is exposed is available on the Géorisques website: www.georisques.gouv.fr
Condominiums of 49 units. Annual expenses : 1008 euros.