Aller au contenu principal

Achat Appartement 2 pièce(s) 44 m2

235 000 €
Saint-Jacques-de-la-Lande
(
35136
)
60451-A101

En vous inscrivant sur le site du cabinet Moraine vous bénéficierez de nombreux services complémentaires. L'inscription est totalement gratuite et ne vous engage rien.

Se connecter
2
Rooms
1
Chambre(s)
44m²
Surface

Présentation du bien

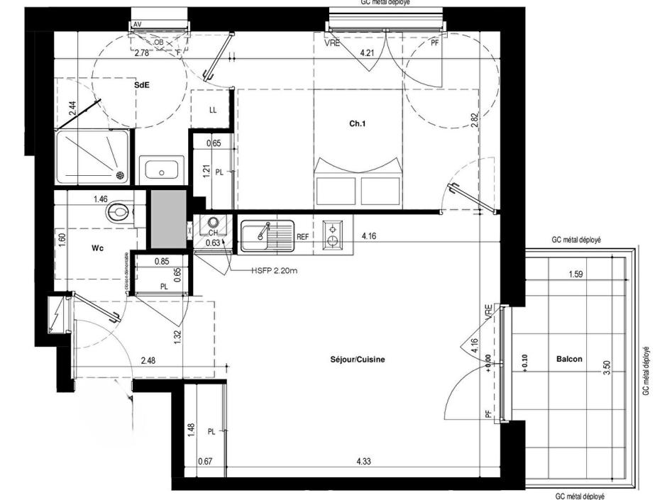
COURROUZE / ST JACQUES - Appartement 2 pièces 44.38m² Sud -1er étage - ascenseur - balcon 5.57m²
A 500 mètres du métro et des transports, découvrez cet appartement de 2 pièces d'une surface de 44.38m², situé au 1er étage avec ascenseur d'une résidence contemporaine aux normes RT 2020. Situé au coeur d'un quartier dynamique, il offre un cadre de vie agréable avec un accès immédiat aux services et infrastructures. Sa situation garantit une mobilité optimale grâce à la proximité de la ligne B du métro, des lignes de bus et des pistes cyclables. Baigné de lumière grâce à son exposition Sud, cet appartement se compose d'une entrée avec placard, d'un séjour avec cuisine ouverte donnant accès à un balcon de 5,57 m², d'une chambre avec placard et d'une salle d'eau privative, WC indépendant. Ne manquez pas cette opportunité idéale pour un investissement ou une première acquisition. Contactez-nous dès aujourd'hui pour plus d'informations ! Prix promoteur - Frais de notaire réduits. Les informations relatives aux risques auxquels ce bien est exposé sont disponibles sur le site Géorisques : www.georisques.gouv.fr. Photos non contractuelles, suggestions d'aménagements
Copropriété de 24 lots - dont 24 lots habitation. (Pas de procédure en cours).

Charges annuelles : 648 euros.

Dépenses énergétiques

A B C D E F G logement très performant logement extrêmement peu performant Non requis
A B C D E F G emissions de CO₂ très importantes peu d'émission de CO₂ Non requis

Localisation du bien

Contactez-nous

Contactez un conseiller par téléphone ou
laissez-nous un message via notre formulaire.

02 99 32 43 86

Simulation financière
Montant de votre prêt Montant du prêt
Durée de votre prêt Durée du prêt
Taux d'intérêt avant négociation Taux d'intérêts
Montant du prêt
Durée du prêt
Mensualités

 Recharger Contactez-nous

Biens similaires

A B C D E F G logement très performant logement extrêmement peu performant Non requis
A B C D E F G emissions de CO₂ très importantes peu d'émission de CO₂ Non requis
Affichage :