Aller au contenu principal

Achat Appartement 3 pièce(s) 61 m2

245 000 €
Acigné
(
35690
)
6251-3202

En vous inscrivant sur le site du cabinet Moraine vous bénéficierez de nombreux services complémentaires. L'inscription est totalement gratuite et ne vous engage rien.

Se connecter
3
Rooms
2
Chambre(s)
61m²
Surface

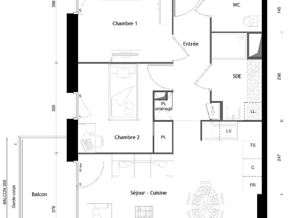
Présentation du bien

ACIGNE - Appartement 3 pièces 61.32m² Sud - 2ème étage - ascenseur - balcon 5.47m² - stationnement
Proche de Rennes et de Cesson-Sévigné, idéalement situé à Acigné, au sein d'une résidence conforme aux dernières normes RT 2020, cet appartement 3 pièces, situé au 2ème étage avec ascenseur, vous offre une organisation fonctionnelle : Dès l'entrée, un espace dédié dessert l'ensemble des pièces, avec un placard aménagé permettant un rangement. La pièce de vie lumineuse exposé au Sud accueille un séjour salon avec cuisine ouverte. Cet espace convivial bénéficie d'une ouverture sur l'extérieur grâce à un accès direct au balcon 5.47m². L'espace nuit se compose de deux chambres bien proportionnées. La chambre principale offre un volume confortable pour un lit double et du mobilier de rangement. La seconde chambre, plus compacte, peut accueillir une chambre d'enfant, un bureau ou une chambre d'amis selon les besoins. La salle d'eau est équipée pour accueillir un lave-linge. Les toilettes sont indépendantes. L'agencement général de l'appartement permet une séparation efficace entre les espaces jour et nuit, garantissant calme et intimité. Une place de stationnement sécurisé en sous-sol complète ce bien. Les commodités sont accessibles à pied : à quelques minutes se trouvent boulangerie, écoles maternelles et élémentaires, accueil périscolaire ainsi qu'un arrêt de bus du réseau STAR permettant une connexion rapide à la ligne B du métro. Un environnement idéal pour vivre, grandir et s'installer durablement. Prix promoteur - frais de notaire réduits.
Les informations sur les risques auxquels ce bien est exposé sont disponibles sur le site Géorisques : www.georisques.gouv.fr
Copropriété de 53 lots - dont 53 lots habitation. (Pas de procédure en cours).

Charges annuelles : 874 euros.

Dépenses énergétiques

A B C D E F G logement très performant logement extrêmement peu performant Non requis
A B C D E F G emissions de CO₂ très importantes peu d'émission de CO₂ Non requis

Localisation du bien

Contactez-nous

Contactez un conseiller par téléphone ou
laissez-nous un message via notre formulaire.

02 99 32 43 86

Simulation financière
Montant de votre prêt Montant du prêt
Durée de votre prêt Durée du prêt
Taux d'intérêt avant négociation Taux d'intérêts
Montant du prêt
Durée du prêt
Mensualités

 Recharger Contactez-nous

Biens similaires

A B C D E F G logement très performant logement extrêmement peu performant Non requis
A B C D E F G emissions de CO₂ très importantes peu d'émission de CO₂ Non requis
Affichage :