Aller au contenu principal

Achat Appartement 2 pièce(s) 43 m2

Prix non communiqué
Cancale
(
35260
)
9013K-A03

En vous inscrivant sur le site du cabinet Moraine vous bénéficierez de nombreux services complémentaires. L'inscription est totalement gratuite et ne vous engage rien.

Se connecter
2
Rooms
1
Chambre(s)
43m²
Surface

Présentation du bien

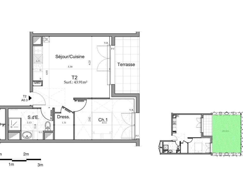
CANCALE - Appartement 2 pièces de 43.91 m² avec terrasse de 6.59m² et jardin de 37.56m² -
A 15 min. de St Malo, sur les hauteurs de Cancale, "environnement naturel exceptionnel et préservé ! "dans la Baie du Mont St Michel, non loin de St Méloir des Ondes, St Coulomb... bénéficiant de nombreux commerces en centre ville et sur le port, des lignes de transports urbains, des accès rapides vers le centre, le port, écoles.... dans une résidence de qualité avec des prestations et équipements soignés, s'inspirant de l'habitat local, intimiste aux dernières normes RT2012 érigée autour d'espaces paysagés, appartement 2 pièces situé au rez-de-chaussée comprenant : un séjour salon ouvrant sur une terrasse de 6.69m², jardin de 37.56m², cuisine ouverte, une chambre, dressing, salle d'eau avec wc.
Prix direct promoteur - frais de notaire réduits - RT2012
Copropriété de 30 lots (Pas de procédure en cours).

Charges annuelles : 630 euros.

Dépenses énergétiques

A B C D E F G logement très performant logement extrêmement peu performant Non communiqué
A B C D E F G emissions de CO₂ très importantes peu d'émission de CO₂ Non communiqué

Localisation du bien

Contactez-nous

Contactez un conseiller par téléphone ou
laissez-nous un message via notre formulaire.

02 99 32 43 86

Simulation financière
Montant de votre prêt Montant du prêt
Durée de votre prêt Durée du prêt
Taux d'intérêt avant négociation Taux d'intérêts
Montant du prêt
Durée du prêt
Mensualités

 Recharger Contactez-nous

Biens similaires

A B C D E F G logement très performant logement extrêmement peu performant Non communiqué
A B C D E F G emissions de CO₂ très importantes peu d'émission de CO₂ Non communiqué
Affichage :