Aller au contenu principal

Achat Appartement 4 pièce(s) 90 m2

425 000 €
Rennes
(
35000
)
57501-603

En vous inscrivant sur le site du cabinet Moraine vous bénéficierez de nombreux services complémentaires. L'inscription est totalement gratuite et ne vous engage rien.

Se connecter
4
Rooms
3
Chambre(s)
1
Salle(s) de bain
90m²
Surface

Présentation du bien

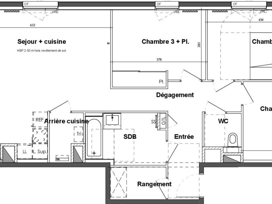
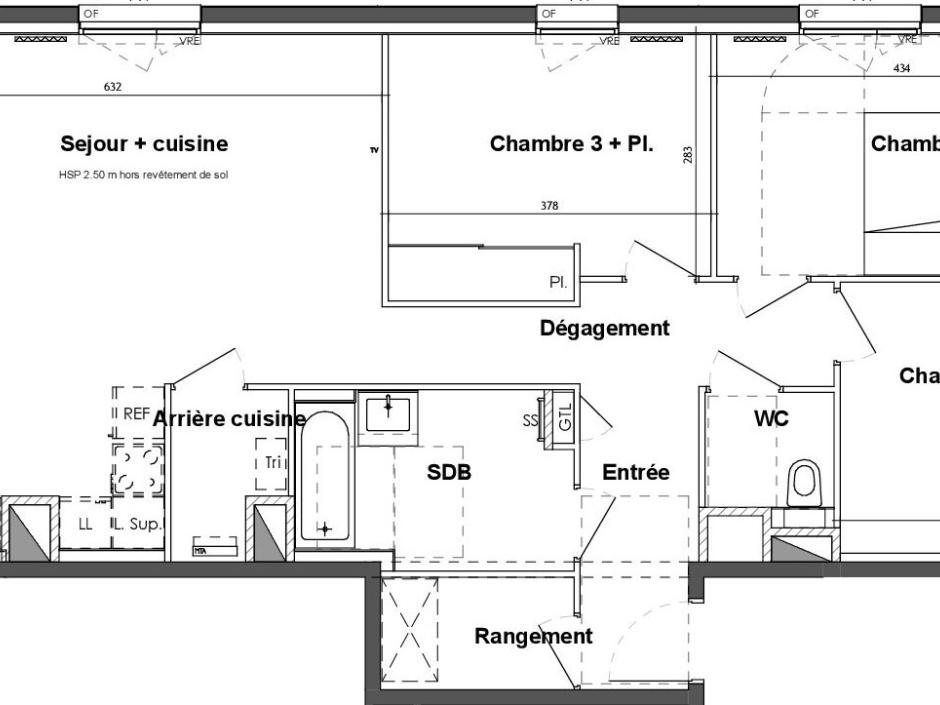
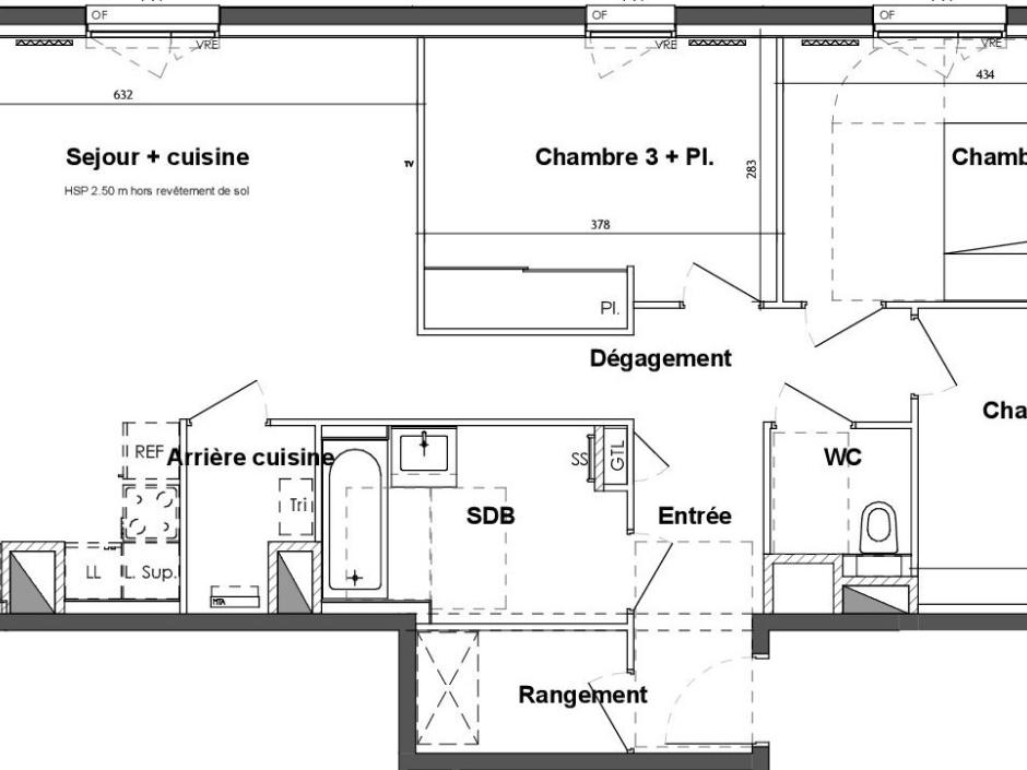
RENNES - PLAINE DE BAUD- Appartement 4 pièces 90,19m² Ouest - 6ème étage - ascenseur - balcons de 12.21m² et 11.91m² - stationnement privatif en sous-sol sécurisé
Dans un cadre de vie paisible en ville, au bord de l'eau avec plage et activités nautiques, non loin du coeur historique et des quais, services et commodités.. pistes cyclables et transports collectifs : A 10 minutes à vélo de la place de la Mairie, à 5 minutes en voiture de l'hyper centre et de la gare LGV.
Dans une résidence contemporaine, situé au 6ème étage avec ascenseur, appartement 4 pièces de 90,19 m² exposé à l'Ouest, comprenant : une entrée avec un espace de rangement, dégagement, un séjour salon avec cuisine ouverte aménagée donnant accès à un premier balcon de 12.21m², une arrière cuisine, trois chambres dont une avec placard, deux autres avec accès sur un deuxième balcon de 11,91m², une salle de bains, wc indépendant, un stationnement en sous-sol sécurisé.. Idéal achat en principal ou secondaire ou locatif. Prix promoteur - Frais de notaire réduits - Les informations sur les risques auxquels ce bien est exposé sont disponibles sur le site Géorisques : www.georisques.gouv.fr. Photos non contractuelles - Suggestions d'aménagements

Copropriété de 30 lots - dont 30 lots habitation. (Pas de procédure en cours).

Charges annuelles : 1298 euros.

Dépenses énergétiques

A B C D E F G logement très performant logement extrêmement peu performant Non requis
A B C D E F G emissions de CO₂ très importantes peu d'émission de CO₂ Non requis

Localisation du bien

Contactez-nous

Contactez un conseiller par téléphone ou
laissez-nous un message via notre formulaire.

02 99 32 43 86

Simulation financière
Montant de votre prêt Montant du prêt
Durée de votre prêt Durée du prêt
Taux d'intérêt avant négociation Taux d'intérêts
Montant du prêt
Durée du prêt
Mensualités

 Recharger Contactez-nous

Biens similaires

A B C D E F G logement très performant logement extrêmement peu performant Non requis
A B C D E F G emissions de CO₂ très importantes peu d'émission de CO₂ Non requis
Affichage :