Aller au contenu principal

Achat Appartement 3 pièce(s) 68 m2

437 000 €
Saint-Malo
(
35400
)
6262-33

En vous inscrivant sur le site du cabinet Moraine vous bénéficierez de nombreux services complémentaires. L'inscription est totalement gratuite et ne vous engage rien.

Se connecter
3
Rooms
2
Chambre(s)
68m²
Surface

Présentation du bien

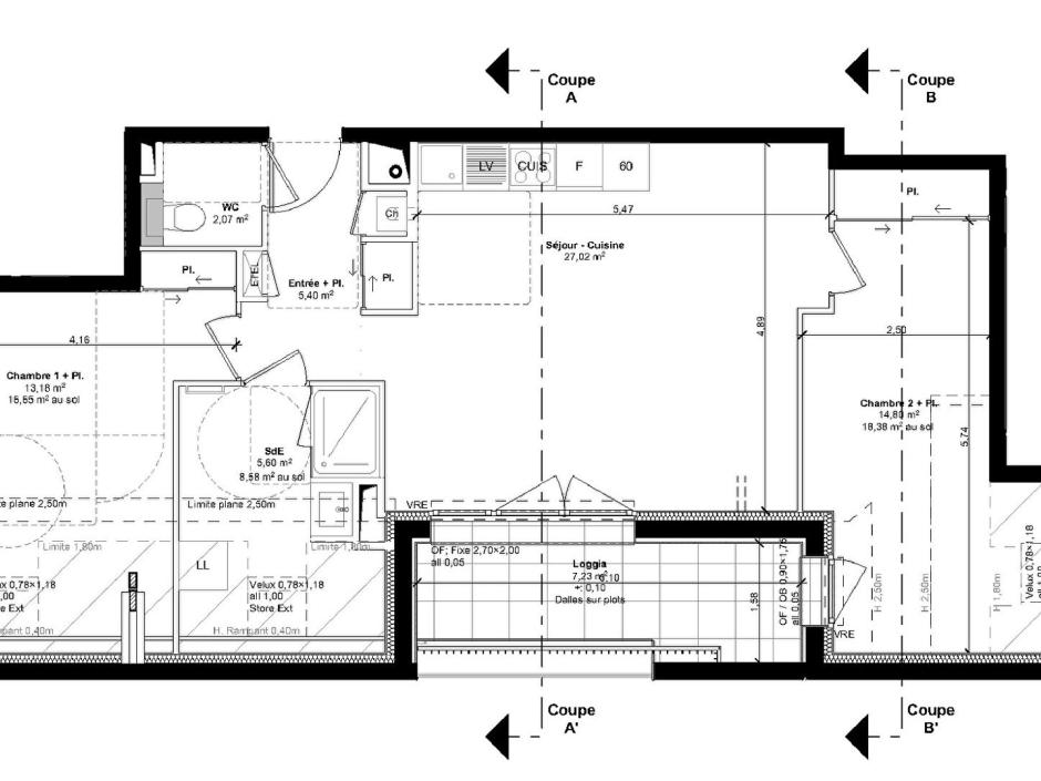
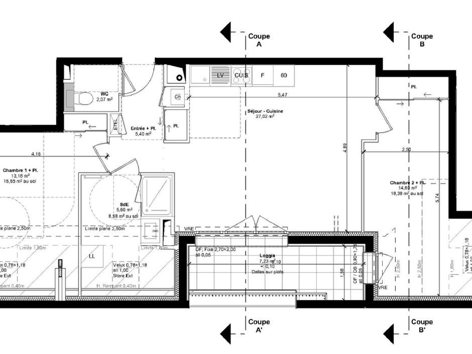
Saint Malo - Paramé - Appartement 3 pièces 68.07m² SH - 74.52m² surface utile - dernier étage - ascenseur - stationnement en sous-sol sécurisé.
Idéalement situé à Saint-Malo, au coeur d'un secteur résidentiel et calme, cet appartement bénéficie d'un emplacement privilégié à seulement 900 mètres des plages, des commerces, du marché et des transports. Il se trouve au sein d'une résidence intimiste d'architecture contemporaine, conforme aux normes RT2020, alliant confort moderne et performance énergétique. Situé au troisième et dernier étage avec ascenseur, ce bel appartement de 3 pièces, exposé au Sud, développe 68.07 m² habitables et 74.52 m² au sol. Il se compose d'une entrée avec placard, d'un séjour avec salon avec cuisine ouverte, baigné de lumière et prolongé par une loggia de 7.23m² au Sud, deux chambres avec placard, une salle d'eau, WC indépendant. Un stationnement sécurisé en sous-sol complète ce bien. Prestations de qualité : Performances énergétiques RT2020 - Accès sécurisé par badge et visiophone - Ascenseur - Choisir Saint-Malo, c'est opter pour une destination authentique, où il fait bon vivre, travailler et investir durablement. Prix promoteur - frais de notaire réduits. Les informations sur les risques auxquels ce bien est exposé sont disponibles sur le site Géorisques : www.georisques.gouv.fr.
Copropriété de 57 lots - dont 17 lots habitation. (Pas de procédure en cours).

Charges annuelles : 979 euros.

Dépenses énergétiques

A B C D E F G logement très performant logement extrêmement peu performant Non requis
A B C D E F G emissions de CO₂ très importantes peu d'émission de CO₂ Non requis

Localisation du bien

Contactez-nous

Contactez un conseiller par téléphone ou
laissez-nous un message via notre formulaire.

02 99 32 43 86

Simulation financière
Montant de votre prêt Montant du prêt
Durée de votre prêt Durée du prêt
Taux d'intérêt avant négociation Taux d'intérêts
Montant du prêt
Durée du prêt
Mensualités

 Recharger Contactez-nous

Biens similaires

A B C D E F G logement très performant logement extrêmement peu performant Non requis
A B C D E F G emissions de CO₂ très importantes peu d'émission de CO₂ Non requis
Affichage :