Aller au contenu principal

Achat Appartement 4 pièce(s) 89 m2

344 000 €
Orgères
(
35230
)
60337-33

En vous inscrivant sur le site du cabinet Moraine vous bénéficierez de nombreux services complémentaires. L'inscription est totalement gratuite et ne vous engage rien.

Se connecter
4
Rooms
3
Chambre(s)
89m²
Surface

Présentation du bien

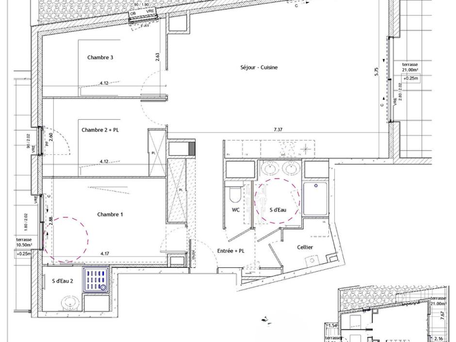
ORGÈRES - Appartement T4 de 89,69 m² avec terrasses et stationnements - 3ème étage - ascenseur.
Situé idéalement au sud de Rennes Métropole, sur la commune prisée d'Orgères, découvrez cet appartement élégant niché au 3? et dernier étage d'une résidence moderne avec ascenseur et accès sécurisé, à proximité immédiate des commerces et commodités.
Orienté plein sud, cet appartement lumineux propose :
Une entrée avec un spacieux placard,
Un vaste séjour avec cuisine ouverte, donnant accès à une terrasse ensoleillée de 21 m²,
Trois chambres, toutes ouvertes sur une seconde terrasse de 10.50m², dont une suite parentale avec salle d'eau privative,
Une salle d'eau supplémentaire avec double vasques,
Un WC indépendant,
Un cellier pratique.
Un garage sécurisé en sous-sol et une place de stationnement privative complètent ce bien.
Que vous soyez à la recherche d'un cadre de vie convivial ou d'un investissement durable, cette résidence allie confort et sérénité dans une commune où il fait bon vivre.
Prix promoteur - Frais de notaire réduits - Normes RT2020
Ne laissez pas passer cette opportunité !
Les informations sur les risques auxquels ce bien est exposé sont disponibles sur le site Géorisques : www.georisques.gouv.fr
Copropriété de 17 lots - dont 15 lots habitation. (Pas de procédure en cours).

Charges annuelles : 1281 euros.

Dépenses énergétiques

A B C D E F G logement très performant logement extrêmement peu performant Non requis
A B C D E F G emissions de CO₂ très importantes peu d'émission de CO₂ Non requis

Localisation du bien

Contactez-nous

Contactez un conseiller par téléphone ou
laissez-nous un message via notre formulaire.

02 99 32 43 86

Simulation financière
Montant de votre prêt Montant du prêt
Durée de votre prêt Durée du prêt
Taux d'intérêt avant négociation Taux d'intérêts
Montant du prêt
Durée du prêt
Mensualités

 Recharger Contactez-nous

Biens similaires

A B C D E F G logement très performant logement extrêmement peu performant Non requis
A B C D E F G emissions de CO₂ très importantes peu d'émission de CO₂ Non requis
Affichage :