Aller au contenu principal

Achat Appartement 2 pièce(s) 46 m2

275 000 €
La Richardais
(
35780
)
61288-A306

En vous inscrivant sur le site du cabinet Moraine vous bénéficierez de nombreux services complémentaires. L'inscription est totalement gratuite et ne vous engage rien.

Se connecter
2
Rooms
1
Chambre(s)
46m²
Surface

Présentation du bien

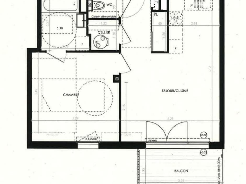
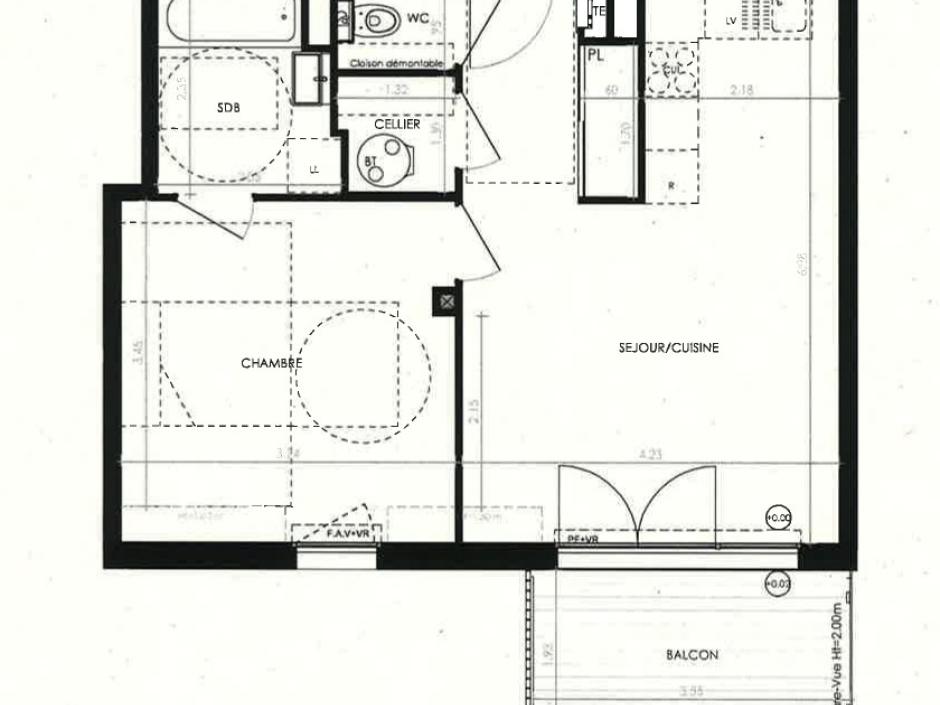
La Richardais Appartement 2 pièces de 46.05m² Sud - dernier étage - balcon 6.80m² - stationnement privatif
Offrez-vous un cadre de vie exceptionnel à deux pas des rives de la Rance, au coeur d'un village préservé et niché dans un environnement naturel privilégié. La Richardais, idéalement située à proximité immédiate de Saint-Malo et Dinard, est facilement accessible en voiture ou via les transports en commun. Vous y trouverez tous les commerces et services du quotidien.
Au sein d'une résidence élégante, moderne, sécurisée et conforme aux dernières normes énergétiques, découvrez ce charmant appartement 2 pièces de 46.05m² situé au 3? et dernier étage avec ascenseur. Exposé plein Sud, il se compose d'une entrée avec placard, d'un séjour lumineux avec cuisine ouverte donnant sur un balcon de 6,80 m², d'une chambre avec salle de bains privative, de WC séparés, ainsi qu'un stationnement privatif.
Que vous recherchiez une résidence principale, un pied-à-terre ou un investissement locatif, ce bien présente un fort potentiel patrimonial. Ses atouts : un cadre de vie paisible entre terre et mer, les promenades en bord de Rance, un port de plaisance, les plages à proximité, et une offre complète de services : commerces de proximité, marché local, crèche, écoles, médiathèque, équipements sportifs et club de voile.
Prix promoteur - frais de notaire réduits - Hautes performances énergétiques. Les informations sur les risques auxquels ce bien est exposé sont disponibles sur le site Géorisques : www.georisques.gouv.fr. Photos non contractuelles - Suggestions d'aménagements
Copropriété de 17 lots - dont 17 lots habitation. (Pas de procédure en cours) \n\r Charges annuelles : 662 euros.

Dépenses énergétiques

A B C D E F G logement très performant logement extrêmement peu performant Non requis
A B C D E F G emissions de CO₂ très importantes peu d'émission de CO₂ Non requis

Localisation du bien

Contactez-nous

Contactez un conseiller par téléphone ou
laissez-nous un message via notre formulaire.

02 99 32 43 86

Simulation financière
Montant de votre prêt Montant du prêt
Durée de votre prêt Durée du prêt
Taux d'intérêt avant négociation Taux d'intérêts
Montant du prêt
Durée du prêt
Mensualités

 Recharger Contactez-nous

Biens similaires

A B C D E F G logement très performant logement extrêmement peu performant Non requis
A B C D E F G emissions de CO₂ très importantes peu d'émission de CO₂ Non requis
Affichage :