Aller au contenu principal

Achat Appartement 2 pièce(s) 41 m2

181 000 €
Saint-Erblon
(
35230
)
6043-13

En vous inscrivant sur le site du cabinet Moraine vous bénéficierez de nombreux services complémentaires. L'inscription est totalement gratuite et ne vous engage rien.

Se connecter
2
Rooms
1
Chambre(s)
41m²
Surface

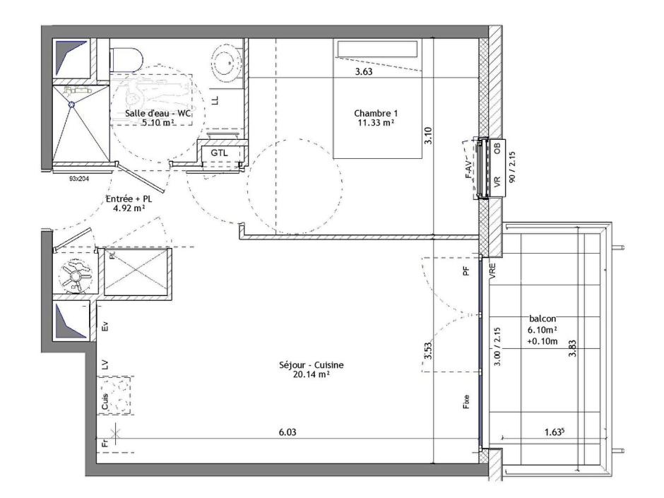
Présentation du bien

Saint Erblon - appartement 2 pièces 41.49m² - 1er étage - balcon 6.10m² - ascenseur - stationnement. FRAIS DE NOTAIRE OFFERTS
Idéalement situé, dans une résidence d'architecture contemporaine, aux dernières normes RE2020, au sein d'un environnement calme et verdoyant, proche des commodités, des transports ... appartement 2 pièces de 41.49m², au 1er étage avec ascenseur, comprenant : une entrée avec placard, un séjour salon avec cuisine donnant accès à un balcon de 6.10m², une chambre, salle d'eau avec wc. Stationnement extérieur. Prix promoteur - Les informations sur les risques auxquels ce bien est exposé sont disponibles sur le site Géorisques : www.georisques.gouv.fr. Photos non contractuelles - Suggestions d'aménagements
Copropriété de 19 lots - dont 19 lots habitation.

Charges annuelles : 619 euros.

Dépenses énergétiques

A B C D E F G logement très performant logement extrêmement peu performant Non requis
A B C D E F G emissions de CO₂ très importantes peu d'émission de CO₂ Non requis

Localisation du bien

Contactez-nous

Contactez un conseiller par téléphone ou
laissez-nous un message via notre formulaire.

02 99 32 43 86

Simulation financière
Montant de votre prêt Montant du prêt
Durée de votre prêt Durée du prêt
Taux d'intérêt avant négociation Taux d'intérêts
Montant du prêt
Durée du prêt
Mensualités

 Recharger Contactez-nous

Biens similaires

A B C D E F G logement très performant logement extrêmement peu performant Non requis
A B C D E F G emissions de CO₂ très importantes peu d'émission de CO₂ Non requis
Affichage :