Aller au contenu principal

Achat Appartement 2 pièce(s) 44 m2

259 000 €
Rennes
(
35000
)
60441-A302

En vous inscrivant sur le site du cabinet Moraine vous bénéficierez de nombreux services complémentaires. L'inscription est totalement gratuite et ne vous engage rien.

Se connecter
2
Rooms
1
Chambre(s)
44m²
Surface

Présentation du bien

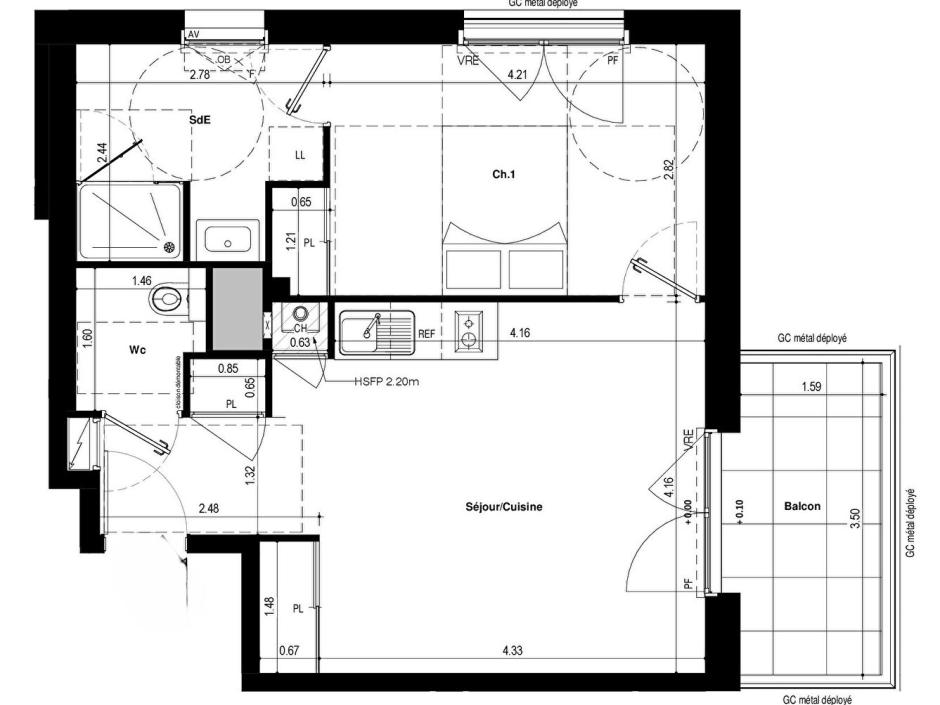
COURROUZE / ST JACQUES - Appartement 2 pièces 44.04m² Sud Ouest- 3ème étage - ascenseur - balcon 5.53m²- stationnement en sous-sol sécurisé.
Découvrez ce charmant appartement de 2 pièces, offrant une surface de 44,04 m² et une belle exposition Sud-Ouest. Niché au 3? étage d'une résidence contemporaine avec ascenseur, conforme aux dernières normes RT 2020, il bénéficie d'un emplacement privilégié au coeur d'un quartier dynamique, alliant confort de vie et accessibilité. Profitez d'une proximité immédiate avec les commerces, écoles, services et infrastructures, ainsi que d'une excellente connectivité grâce à la ligne B du métro à 500 mètres, aux lignes de bus et aux pistes cyclables. Baigné de lumière grâce à son exposition optimale, cet appartement se compose d'une entrée, d'un séjour avec cuisine ouverte s'ouvrant sur un agréable balcon de 5,53 m², d'une chambre et d'une salle d'eau avec WC. Un stationnement en sous-sol sécurisé complète ce bien. Ne manquez pas cette opportunité idéale pour un investissement ou une première acquisition, alliant confort, modernité et praticité. Prix promoteur - Frais de notaire réduits
Les informations relatives aux risques auxquels ce bien est exposé sont disponibles sur le site Géorisques : www.georisques.gouv.fr. Photos non contractuelles, suggestions d'aménagements
Copropriété de 24 lots - dont 24 lots habitation. (Pas de procédure en cours).

Charges annuelles : 633 euros.

Dépenses énergétiques

A B C D E F G logement très performant logement extrêmement peu performant Non requis
A B C D E F G emissions de CO₂ très importantes peu d'émission de CO₂ Non requis

Localisation du bien

Contactez-nous

Contactez un conseiller par téléphone ou
laissez-nous un message via notre formulaire.

02 99 32 43 86

Simulation financière
Montant de votre prêt Montant du prêt
Durée de votre prêt Durée du prêt
Taux d'intérêt avant négociation Taux d'intérêts
Montant du prêt
Durée du prêt
Mensualités

 Recharger Contactez-nous

Biens similaires

A B C D E F G logement très performant logement extrêmement peu performant Non requis
A B C D E F G emissions de CO₂ très importantes peu d'émission de CO₂ Non requis
Affichage :