Achat Appartement 2 pièce(s) 48 m2
En vous inscrivant sur le site du cabinet Moraine vous bénéficierez de nombreux services complémentaires. L'inscription est totalement gratuite et ne vous engage rien.
Se connecterPrésentation du bien
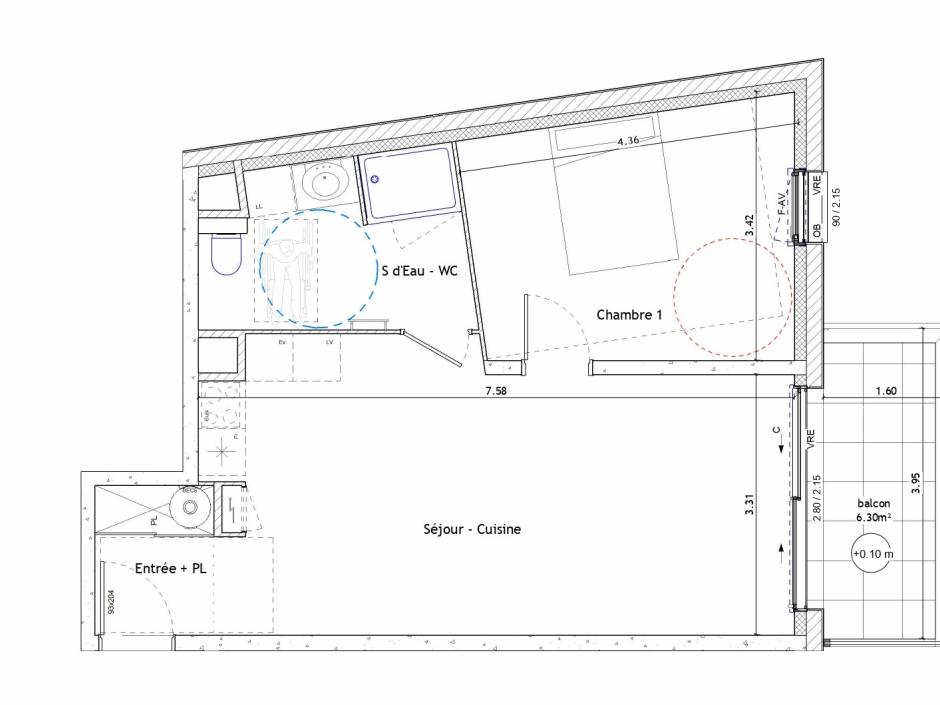
ORGÈRES - Appartement 2 pièces 48.66m² Sud-est - 2ème étage - ascenseur - balcon 6.30m² - stationnement en sous-sol sécurisé.
Situé au sud de Rennes Métropole, sur la commune d'Orgères, découvrez cet appartement T2 de 48,66 m² à vendre, au 1er étage d'une résidence élégante avec ascenseur et accès sécurisé. Idéalement implantée, la résidence bénéficie d'un emplacement privilégié, à proximité immédiate des commerces, services et commodités, offrant un cadre de vie pratique et confortable au quotidien. Exposé plein sud-est, cet appartement lumineux se compose d'une entrée avec placard, d'un séjour-salon avec cuisine ouverte prolongé par un balcon de 6,30 m², d'une chambre confortable ainsi que d'une salle d'eau avec WC.
Une place de stationnement sécurisée en sous-sol complète ce bien.
Cet appartement à Orgères constitue une opportunité idéale pour un premier achat, un investissement locatif ou pour profiter d'un cadre de vie agréable à quelques minutes de Rennes. Prix promoteur - Frais de notaire réduits - Normes RT2020
Les informations sur les risques auxquels ce bien est exposé sont disponibles sur le site Géorisques : www.georisques.gouv.fr
Copropriété de 17 lots - dont 15 lots habitation.
Charges annuelles : 691 euros.
Dépenses énergétiques
Localisation du bien
Contactez-nous
Contactez un conseiller par téléphone ou
laissez-nous un message via notre formulaire.