Achat Appartement 5 pièce(s) 114 m2
En vous inscrivant sur le site du cabinet Moraine vous bénéficierez de nombreux services complémentaires. L'inscription est totalement gratuite et ne vous engage rien.
Se connecterPrésentation du bien
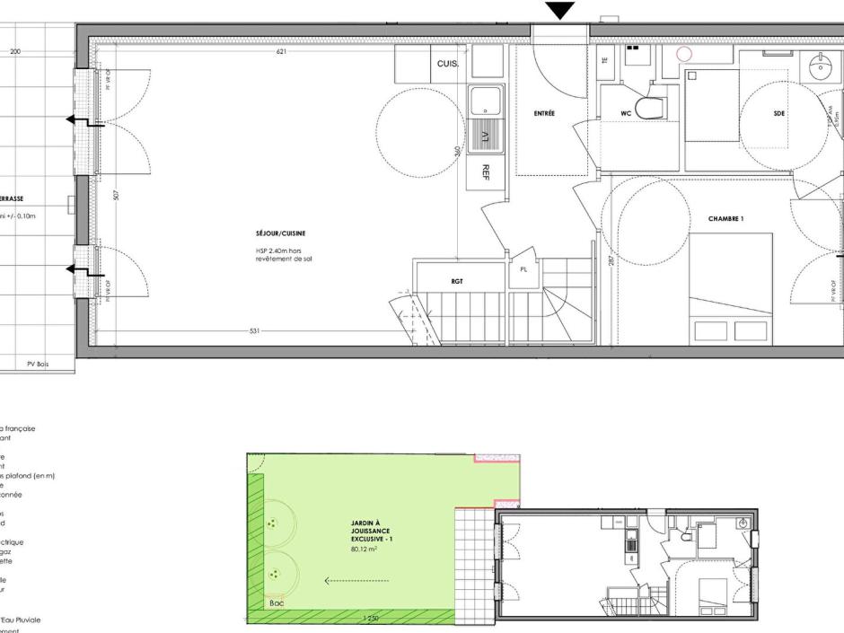
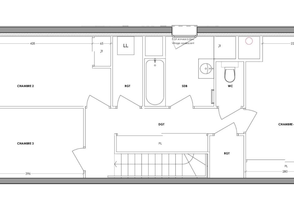
CHANTEPIE - Appartement 5 pièces duplex 114.81m² Ouest - terrasse et jardin de 80.12m² - stationnements.
Non loin des commerces, du marché, des commodités, bus écoles, des services à proximité, des parcs et jardins,.. au sein d' un environnement verdoyant, dans un ensemble résidentiel, appartement de 5 pièces duplex exposé à l'Ouest comprenant : une entrée avec placard, un séjour salon de 32m² avec cuisine ouverte, accès à une terrasse et jardin de 80.12m², une chambre avec sa salle d'eau, wc indépendant, à l'étage, palier/dégagement avec placard, 3 chambres, 2 rangements, salle de bains, wc indépendant. Deux stationnements privatifs : un sous-sol sécurisé et un extérieur. Prix promoteur - frais de notaire réduits
Les informations sur les risques auxquels ce bien est exposé sont disponibles sur le site Géorisques : www.georisques.gouv.fr. Photos non contractuelles - Suggestions d'aménagements
Copropriété de 14 lots - dont 14 lots habitation.
Charges annuelles : 1600 euros.
Dépenses énergétiques
Localisation du bien
Contactez-nous
Contactez un conseiller par téléphone ou
laissez-nous un message via notre formulaire.