Aller au contenu principal

Achat Appartement 2 pièce(s) 45 m2

295 000 €
Saint-Nazaire
(
44600
)
6212-A103

En vous inscrivant sur le site du cabinet Moraine vous bénéficierez de nombreux services complémentaires. L'inscription est totalement gratuite et ne vous engage rien.

Se connecter
2
Rooms
1
Chambre(s)
45m²
Surface

Présentation du bien

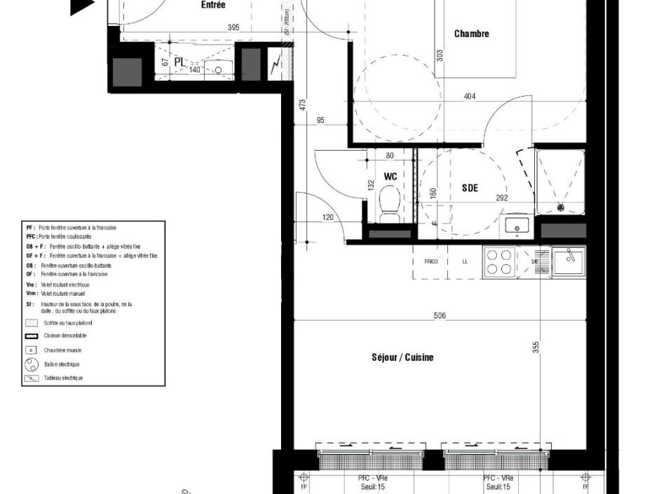
SAINT NAZAIRE Centre Ville - Appartement 2 pièces 45.25m² Sud - 1er étage - ascenseur - balcon 8.76m² - stationnement privatif en sous-sol sécurisé
Située à seulement 100 mètres du front de mer, de l'hyper centre, des commerces et commodités, dans une résidence d'architecture contemporaine, situé au 1er étage avec ascenseur, bel appartement 2 pièces, de 45.25m², exposé plein Sud, comprenant : une entrée, un séjour avec cuisine ouverte donnant accès à un balcon de 8.76 m², d'une chambre, d'une salle d'eau et de WC indépendants. Stationnement en sous-sol sécurisé. Conforme aux dernières normes de construction, ce bien est éligible PTZ et LMNP, et convient aussi bien pour un projet résidentiel que pour une résidence secondaire ou un investissement locatif. Des prestations haut de gamme viennent compléter ce logement, garantissant un confort durable. Chauffage individuel au gaz.
Prix promoteur - frais de notaire offerts
Les informations relatives aux risques auxquels ce bien est exposé sont disponibles sur le site Géorisques : www.georisques.gouv.fr. Photos non contractuelles, suggestions d'aménagements
Copropriété de 29 lots - dont 29 lots habitation. (Pas de procédure en cours).

Charges annuelles : 648 euros.

Dépenses énergétiques

A B C D E F G logement très performant logement extrêmement peu performant Non requis
A B C D E F G emissions de CO₂ très importantes peu d'émission de CO₂ Non requis

Localisation du bien

Contactez-nous

Contactez un conseiller par téléphone ou
laissez-nous un message via notre formulaire.

02 99 32 43 86

Simulation financière
Montant de votre prêt Montant du prêt
Durée de votre prêt Durée du prêt
Taux d'intérêt avant négociation Taux d'intérêts
Montant du prêt
Durée du prêt
Mensualités

 Recharger Contactez-nous

Biens similaires

A B C D E F G logement très performant logement extrêmement peu performant Non requis
A B C D E F G emissions de CO₂ très importantes peu d'émission de CO₂ Non requis
Affichage :