Achat Appartement 2 pièce(s) 45 m2
En vous inscrivant sur le site du cabinet Moraine vous bénéficierez de nombreux services complémentaires. L'inscription est totalement gratuite et ne vous engage rien.
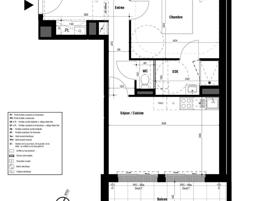
Se connecterPrésentation du bien
SAINT NAZAIRE Centre Ville - Appartement 2 pièces 45.27m² Sud - 1er étage - balcon 7.51m²
Idéalement située à seulement 100 mètres de la plage, des promenades du front de mer ainsi que des commerces, services et équipements du centre-ville, cette résidence contemporaine offre un cadre de vie exceptionnel où l'océan, la nature et les facilités urbaines s'harmonisent parfaitement.
Au 1er étage avec ascenseur, découvrez ce superbe appartement 2 pièces, exposé plein Sud. Il se compose d'une entrée avec placard, d'un dégagement, d'un lumineux séjour avec cuisine ouverte donnant accès à un balcon de 7,51 m², d'une chambre confortable, d'une salle d'eau et de WC indépendants. Conforme aux dernières normes de construction, ce bien est éligible PTZ et LMNP, et convient aussi bien pour un projet résidentiel que pour une résidence secondaire ou un investissement locatif. Des prestations haut de gamme viennent compléter ce logement, garantissant un confort durable. Chauffage individuel au gaz.
Prix promoteur - frais de notaire offerts
Les informations relatives aux risques auxquels ce bien est exposé sont disponibles sur le site Géorisques : www.georisques.gouv.fr. Photos non contractuelles, suggestions d'aménagements
Copropriété de 29 lots - dont 29 lots habitation.
Charges annuelles : 648 euros.
Dépenses énergétiques
Localisation du bien
Contactez-nous
Contactez un conseiller par téléphone ou
laissez-nous un message via notre formulaire.