Aller au contenu principal

Achat Appartement 3 pièce(s) 62 m2

397 000 €
Saint-Malo
(
35400
)
6264-16

En vous inscrivant sur le site du cabinet Moraine vous bénéficierez de nombreux services complémentaires. L'inscription est totalement gratuite et ne vous engage rien.

Se connecter
3
Rooms
2
Chambre(s)
62m²
Surface

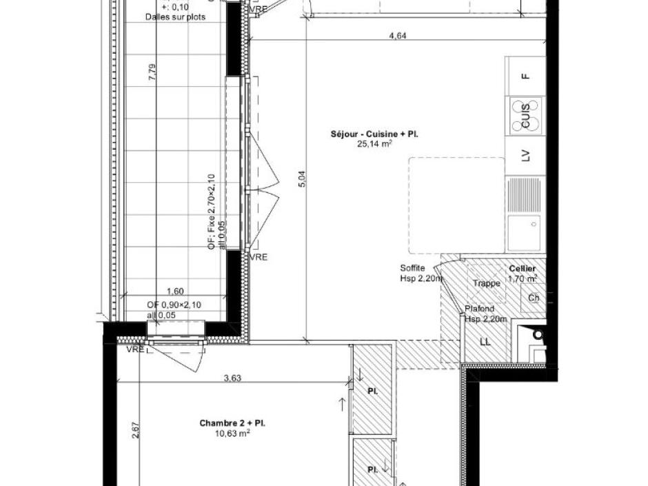
Présentation du bien

Saint Malo - Appartement 3 pièces 62.87m² Ouest- balcon de 12.46m² -1er étage -Stationnements en sous-sol sécurisés.
Au coeur d'un quartier calme et résidentiel, proche des plages, commodités et transports, cet appartement se trouve au sein d'une résidence contemporaine, conforme aux normes RT2020, alliant confort moderne et performance énergétique. Situé au 1er étage avec ascenseur, cet appartement de 3 pièces, exposé à l' Ouest, développe une surface de 62.87 m². Il se compose d'une entrée avec placard, d'un séjour salon avec cuisine ouverte donnant accès à une terrasse de 12.46m², d'une buanderie / cellier, deux chambres, une salle d'eau, WC indépendant. Un stationnement en sous-sol complète ce bien. Prestations de qualité : Performances énergétiques RT2020 - Accès sécurisé par badge et visiophone - Ascenseur - Prix promoteur - frais de notaire réduits. Les informations sur les risques auxquels ce bien est exposé sont disponibles sur le site Géorisques : www.georisques.gouv.fr.
Copropriété de 57 lots - dont 17 lots habitation.

Charges annuelles : 1008 euros.

Dépenses énergétiques

A B C D E F G logement très performant logement extrêmement peu performant Non requis
A B C D E F G emissions de CO₂ très importantes peu d'émission de CO₂ Non requis

Localisation du bien

Contactez-nous

Contactez un conseiller par téléphone ou
laissez-nous un message via notre formulaire.

02 99 32 43 86

Simulation financière
Montant de votre prêt Montant du prêt
Durée de votre prêt Durée du prêt
Taux d'intérêt avant négociation Taux d'intérêts
Montant du prêt
Durée du prêt
Mensualités

 Recharger Contactez-nous

Biens similaires

A B C D E F G logement très performant logement extrêmement peu performant Non requis
A B C D E F G emissions de CO₂ très importantes peu d'émission de CO₂ Non requis
Affichage :