Aller au contenu principal

Achat Maison 3 pièce(s) 81 m2

465 000 €
Saint-Malo
(
35400
)
6094-11

En vous inscrivant sur le site du cabinet Moraine vous bénéficierez de nombreux services complémentaires. L'inscription est totalement gratuite et ne vous engage rien.

Se connecter
3
Rooms
2
Chambre(s)
81m²
Surface

Présentation du bien

SAINT-MALO - Maison neuve 3 Pièces - 81.37 m² - Terrain 500m² - garage
Aux portes de Saint Malo, dans un cadre préservé proche de la nature, au sein d'un petit hameau, maison indépendante 3 pièces de 81.37m², à proximité des commerces, des établissements de santé, des pôles économiques et des principaux axes de transport.
Cette maison de 3 pièces offre de belles prestations : matériaux nobles et durables, ainsi que par son agencement optimisé, pensé pour le confort et la luminosité.
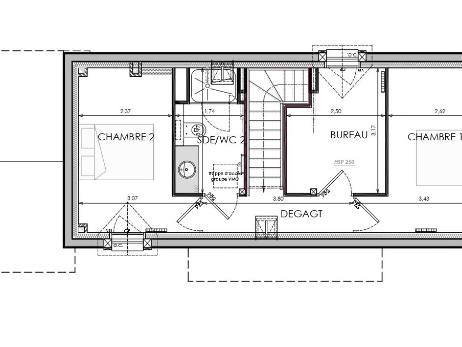
Rez-de-chaussée : une entrée avec placard, belle pièce de vie de 34.86 m² avec cuisine ouverte, baignée de lumière, WC avec point d'eau.
A l'étage : Deux chambres, un pièce bureau, salle d'eau avec WC.
Extérieurs : Garage et un terrain de 500m²
Transports : Ligne de bus à proximité et gare TGV à seulement 10 minutes en voiture.
Accessibilité : Accès rapide aux grands axes vers Rennes (50 min) et Dinan (25 min).
Vie quotidienne : Centres commerciaux, zone d'entreprises et futur hôpital à 2 minutes seulement.
Prix direct promoteur - Frais de notaire réduits - Accession libre - PTZ possible (sous conditions).
Retrouvez toutes les informations relatives aux risques sur www.georisques.gouv.fr
Photos non contractuelles - Suggestions d'aménagement.

Dépenses énergétiques

A B C D E F G logement très performant logement extrêmement peu performant Non requis
A B C D E F G emissions de CO₂ très importantes peu d'émission de CO₂ Non requis

Localisation du bien

Contactez-nous

Contactez un conseiller par téléphone ou
laissez-nous un message via notre formulaire.

02 99 32 43 86

Simulation financière
Montant de votre prêt Montant du prêt
Durée de votre prêt Durée du prêt
Taux d'intérêt avant négociation Taux d'intérêts
Montant du prêt
Durée du prêt
Mensualités

 Recharger Contactez-nous

Biens similaires

A B C D E F G logement très performant logement extrêmement peu performant Non requis
A B C D E F G emissions de CO₂ très importantes peu d'émission de CO₂ Non requis
Affichage :