Aller au contenu principal

Achat Maison 5 pièce(s) 121 m2

599 000 €
La Richardais
(
35780
)
61288-MI04

En vous inscrivant sur le site du cabinet Moraine vous bénéficierez de nombreux services complémentaires. L'inscription est totalement gratuite et ne vous engage rien.

Se connecter
5
Rooms
4
Chambre(s)
2
Salle(s) de bain
121m²
Surface

Présentation du bien

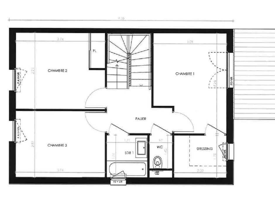
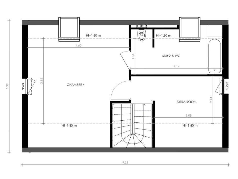
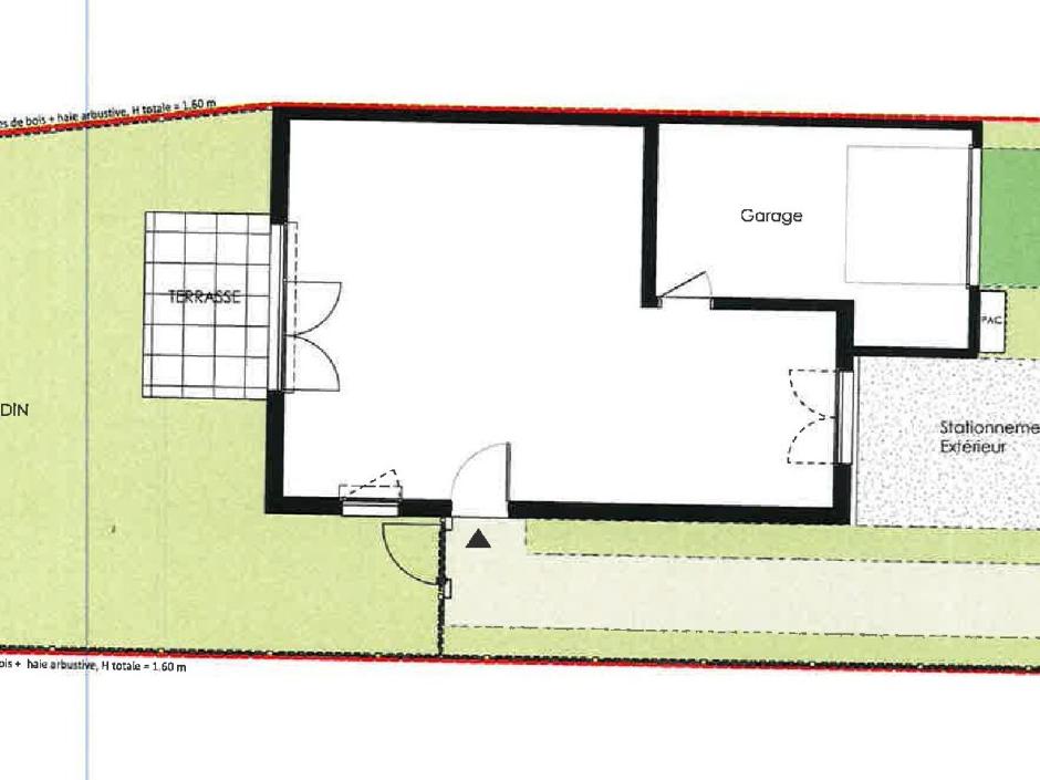
La Richardais - Maison 5 pièces 121.55m² Ouest - jardin 76.05m² - terrasse - garage.
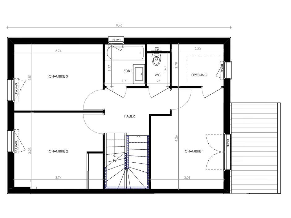
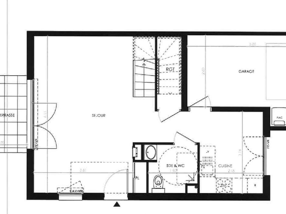
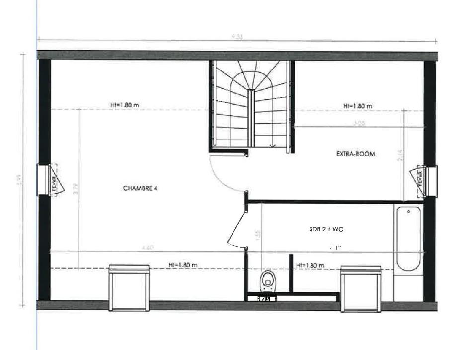
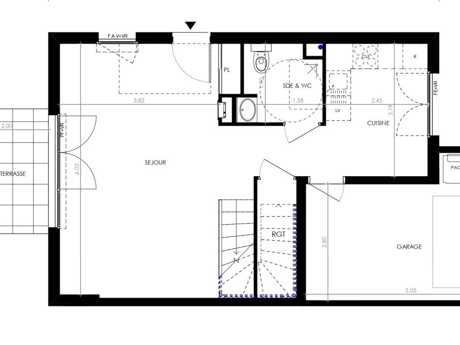
Idéalement située à la Richardais, à proximité des commerces, commodités et transports, cette maison contemporaine de 5 pièces de 121.55m² exposé Ouest comprend : un séjour salon donnant accès à une terrasse de 6m² et un jardin à l'Ouest, une cuisine indépendante, une salle d'eau avec wc, garage, à l'étage, un palier, trois chambres dont une avec dressing, salle de bains, wc indépendant, au 2ème étage, une vaste chambre, une salle de bains, wc, une mezzanine.
Jardin total de 76.05m² - garage et stationnement complémentaire en extérieur.
Idéal en résidence principale ou secondaire, cette maison offre de nombreux atouts : situation proche du bord de la Rance, accès au port de plaisance, plages accessibles à quelques minutes, des services de proximité : commerces, marché, crèche, établissements scolaires, médiathèque, équipements sportifs et club de voile.
Prix promoteur - frais de notaire réduits - Hautes performances énergétiques. Les informations sur les risques auxquels ce bien est exposé sont disponibles sur le site Géorisques : www.georisques.gouv.fr. Photos non contractuelles - Suggestions d'aménagements
Copropriété de 17 lots - dont 17 lots habitation. (Pas de procédure en cours).

Charges annuelles : 1195 euros.

Dépenses énergétiques

A B C D E F G logement très performant logement extrêmement peu performant Non requis
A B C D E F G emissions de CO₂ très importantes peu d'émission de CO₂ Non requis

Localisation du bien

Contactez-nous

Contactez un conseiller par téléphone ou
laissez-nous un message via notre formulaire.

02 99 32 43 86

Simulation financière
Montant de votre prêt Montant du prêt
Durée de votre prêt Durée du prêt
Taux d'intérêt avant négociation Taux d'intérêts
Montant du prêt
Durée du prêt
Mensualités

 Recharger Contactez-nous

Biens similaires

A B C D E F G logement très performant logement extrêmement peu performant Non requis
A B C D E F G emissions de CO₂ très importantes peu d'émission de CO₂ Non requis
Affichage :