Aller au contenu principal

Achat Appartement 3 pièce(s) 58 m2

231 000 €
Vezin-le-Coquet
(
35132
)
62040-1001

En vous inscrivant sur le site du cabinet Moraine vous bénéficierez de nombreux services complémentaires. L'inscription est totalement gratuite et ne vous engage rien.

Se connecter
3
Rooms
2
Chambre(s)
58m²
Surface

Présentation du bien

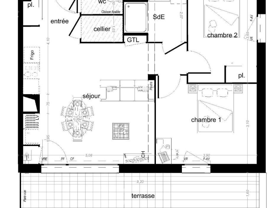
Vezin le Coquet - Appartement 3 pièces 58.74m² Sud - rez-de-jardin - terrasse 15.92m² - stationnements privatifs sécurisé.
A seulement 6 km du centre de Rennes, Vezin le Coquet dispose d'un réseau de transports efficace, grâce aux bus du réseau Star et à la piste cyclable REV (Rennes Express Vélo). Idéalement situé au coeur d'un cadre verdoyant, dans une résidence contemporaine au calme, à proximité immédiate des commerces, des écoles et des commodités, appartement 3 pièces situé en rez-de-jardin, comprenant : une entrée avec placard, un séjour salon avec cuisine ouverte donnant accès à une terrasse de 15.92m², deux chambres, une salle d'eau, wc indépendant, wc indépendant, cellier. Stationnement privatif en sous-sol sécurisé ainsi qu'un stationnement extérieur privatif. Promoteur - frais de notaire réduits - Normes RT2020 et DPE A, garantissant de faibles consommations énergétiques. Les informations sur les risques auxquels ce bien est exposé sont disponibles sur le site Géorisques : www.georisques.gouv.fr
Copropriété de 49 lots - dont 49 lots habitation. (Pas de procédure en cours).

Charges annuelles : 835 euros.

Dépenses énergétiques

A B C D E F G logement très performant logement extrêmement peu performant Non requis
A B C D E F G emissions de CO₂ très importantes peu d'émission de CO₂ Non requis

Localisation du bien

Contactez-nous

Contactez un conseiller par téléphone ou
laissez-nous un message via notre formulaire.

02 99 32 43 86

Simulation financière
Montant de votre prêt Montant du prêt
Durée de votre prêt Durée du prêt
Taux d'intérêt avant négociation Taux d'intérêts
Montant du prêt
Durée du prêt
Mensualités

 Recharger Contactez-nous

Biens similaires

A B C D E F G logement très performant logement extrêmement peu performant Non requis
A B C D E F G emissions de CO₂ très importantes peu d'émission de CO₂ Non requis
Affichage :