Achat Appartement 4 pièce(s) 82 m2
En vous inscrivant sur le site du cabinet Moraine vous bénéficierez de nombreux services complémentaires. L'inscription est totalement gratuite et ne vous engage rien.
Se connecterPrésentation du bien
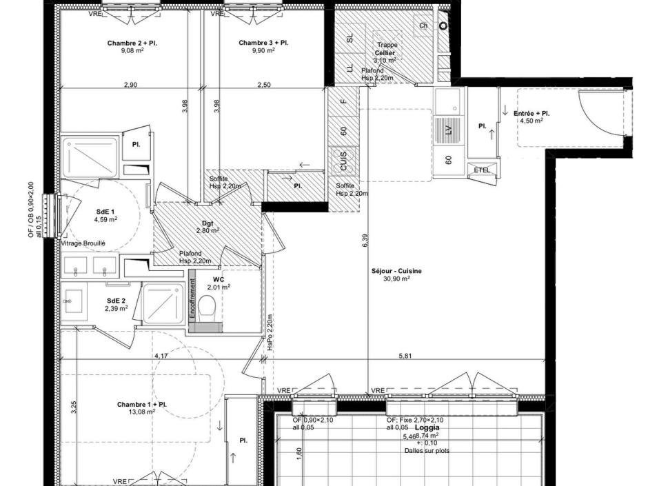
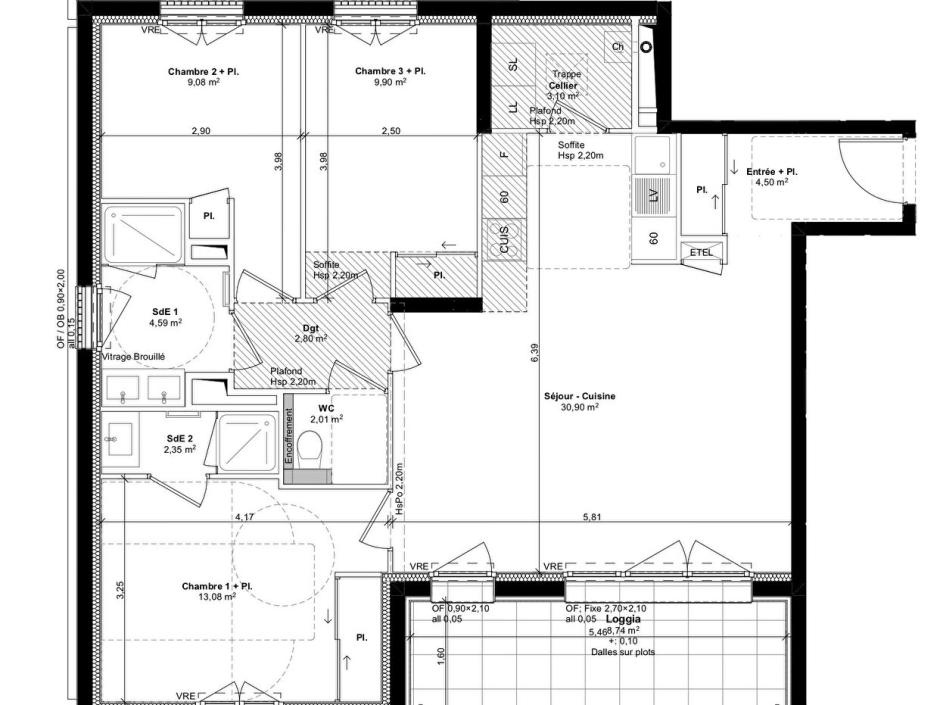
Saint Malo - Appartement 4 pièces 82.31m² Sud- loggia de 8.74m² - 1er étage - ascenseur -Garage.
Proche des plages, commodités et commerces, .. dans un quartier résidentiel, cet appartement se trouve au sein d'une résidence de standing, alliant confort et performance énergétique. Situé au 1er étage avec ascenseur, cet appartement de 4 pièces, exposé au Sud développe une surface de 82.31 m². Il se compose d'une entrée avec placard, d'un vaste séjour salon avec cuisine ouverte donnant accès à une loggia de 8.74m², d'une buanderie/cellier, trois chambres avec placard, deux salles d'eau, WC indépendant. Un garage en sous-sol sécurisé complète ce bien. Prestations de qualité : Performances énergétiques RT2020 - Accès sécurisé par badge et visiophone... Prix promoteur - frais de notaire réduits. Les informations sur les risques auxquels ce bien est exposé sont disponibles sur le site Géorisques : www.georisques.gouv.fr.
Copropriété de 57 lots - dont 17 lots habitation. (Pas de procédure en cours).
Charges annuelles : 1180 euros.
Dépenses énergétiques
Localisation du bien
Contactez-nous
Contactez un conseiller par téléphone ou
laissez-nous un message via notre formulaire.