Aller au contenu principal

Achat Appartement 2 pièce(s) 38 m2

189 000 €
Rennes
(
35000
)
6283-D12

En vous inscrivant sur le site du cabinet Moraine vous bénéficierez de nombreux services complémentaires. L'inscription est totalement gratuite et ne vous engage rien.

Se connecter
2
Rooms
1
Chambre(s)
38m²
Surface

Présentation du bien

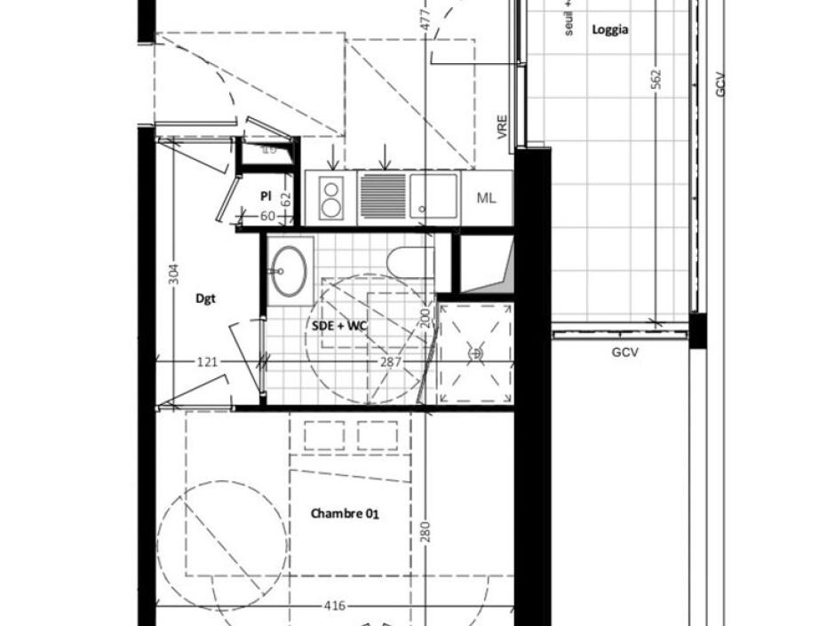
RENNES NORD ST MARTIN - Appartement 2 pièces 38.69m² - balcon de 8.81m² - 1er étage - ascenseur - stationnement en sous-sol.
A quelques pas des Prairies Saint-Martin et du canal, dans un quartier résidentiel paisible et verdoyant, bénéficiant d'une excellente desserte (bus, pistes cyclables, accès rapide au centre-ville et aux grands axes) ainsi que de la proximité des commerces et restaurants, découvrez ce charmant appartement 2 pièces de 38,69 m². Situé au 1er étage d'une résidence contemporaine avec ascenseur, il se compose d'une agréable pièce de vie avec cuisine ouverte, prolongée par un balcon de 8,81 m², d'un dégagement, d'une chambre confortable et d'une salle d'eau avec WC. Un bien alliant confort, fonctionnalité et cadre de vie privilégié. Stationnement en sous-sol sécurisé. Prestations soignées et confort optimal. Conforme à la réglementation environnementale RE2020, la résidence garantit performance énergétique et qualité de vie durable. Prix promoteur - frais de notaire réduits - Les informations concernant les risques liés à ce bien sont disponibles sur le site Géorisques : www.georisques.gouv.fr
Copropriété de 55 lots - dont 55 lots habitation. (Procédure en cours).

Charges annuelles : 561 euros.

Dépenses énergétiques

A B C D E F G logement très performant logement extrêmement peu performant Non requis
A B C D E F G emissions de CO₂ très importantes peu d'émission de CO₂ Non requis

Localisation du bien

Contactez-nous

Contactez un conseiller par téléphone ou
laissez-nous un message via notre formulaire.

02 99 32 43 86

Simulation financière
Montant de votre prêt Montant du prêt
Durée de votre prêt Durée du prêt
Taux d'intérêt avant négociation Taux d'intérêts
Montant du prêt
Durée du prêt
Mensualités

 Recharger Contactez-nous

Biens similaires

A B C D E F G logement très performant logement extrêmement peu performant Non requis
A B C D E F G emissions de CO₂ très importantes peu d'émission de CO₂ Non requis
Affichage :