Aller au contenu principal

Achat Appartement 2 pièce(s) 48 m2

201 000 €
Orgères
(
35230
)
62432-15

En vous inscrivant sur le site du cabinet Moraine vous bénéficierez de nombreux services complémentaires. L'inscription est totalement gratuite et ne vous engage rien.

Se connecter
2
Rooms
1
Chambre(s)
48m²
Surface

Présentation du bien

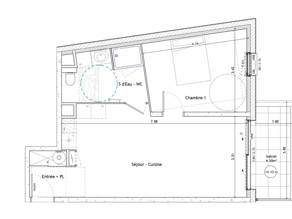
ORGÈRES - Appartement 2 pièces 48.66m² Sud-est - 2ème étage - ascenseur - balcon 6.30m² - stationnement en sous-sol sécurisé.
Situé au sud de Rennes Métropole, sur la commune d'Orgères, découvrez cet appartement T2 de 48,66 m² à vendre, au 1er étage d'une résidence élégante avec ascenseur et accès sécurisé. Idéalement implantée, la résidence bénéficie d'un emplacement privilégié, à proximité immédiate des commerces, services et commodités, offrant un cadre de vie pratique et confortable au quotidien. Exposé plein sud-est, cet appartement lumineux se compose d'une entrée avec placard, d'un séjour-salon avec cuisine ouverte prolongé par un balcon de 6,30 m², d'une chambre confortable ainsi que d'une salle d'eau avec WC.
Une place de stationnement sécurisée en sous-sol complète ce bien.
Cet appartement à Orgères constitue une opportunité idéale pour un premier achat, un investissement locatif ou pour profiter d'un cadre de vie agréable à quelques minutes de Rennes. Prix promoteur - Frais de notaire réduits - Normes RT2020
Les informations sur les risques auxquels ce bien est exposé sont disponibles sur le site Géorisques : www.georisques.gouv.fr
Copropriété de 17 lots - dont 15 lots habitation. (Pas de procédure en cours).

Charges annuelles : 691 euros.

Dépenses énergétiques

A B C D E F G logement très performant logement extrêmement peu performant Non requis
A B C D E F G emissions de CO₂ très importantes peu d'émission de CO₂ Non requis

Localisation du bien

Contactez-nous

Contactez un conseiller par téléphone ou
laissez-nous un message via notre formulaire.

02 99 32 43 86

Simulation financière
Montant de votre prêt Montant du prêt
Durée de votre prêt Durée du prêt
Taux d'intérêt avant négociation Taux d'intérêts
Montant du prêt
Durée du prêt
Mensualités

 Recharger Contactez-nous

Biens similaires

A B C D E F G logement très performant logement extrêmement peu performant Non requis
A B C D E F G emissions de CO₂ très importantes peu d'émission de CO₂ Non requis
Affichage :