Aller au contenu principal

Achat Appartement 2 pièce(s) 48 m2

207 000 €
Orgères
(
35230
)
60337-25

En vous inscrivant sur le site du cabinet Moraine vous bénéficierez de nombreux services complémentaires. L'inscription est totalement gratuite et ne vous engage rien.

Se connecter
2
Rooms
1
Chambre(s)
48m²
Surface

Présentation du bien

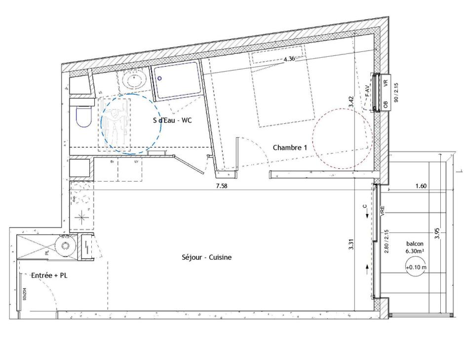
ORGÈRES - Appartement 2 pièces 48.66m² Sud - 2ème étage - ascenseur - balcon 6.30m² - stationnement en sous-sol sécurisé.
Parfaitement implanté au sud de Rennes Métropole, dans la charmante commune d'Orgères, cet appartement de 48,66 m² est situé au 2? étage d'une résidence moderne et élégante. Avec son ascenseur et son accès sécurisé, cette résidence bénéficie d'une localisation stratégique, à deux pas des commerces, services, et commodités, offrant un cadre de vie alliant praticité et confort au quotidien. Orienté plein sud, cet appartement 2 pièces lumineux propose :
Une entrée avec un placard,
Un séjour avec cuisine ouverte, donnant accès au balcon de 6.30m².
Une chambre, une salle d'eau avec wc.
Une place de stationnement extérieure privative complète ce bien.
Que vous soyez à la recherche d'un cadre de vie convivial ou d'un investissement durable, cette résidence allie confort et sérénité dans une commune où il fait bon vivre.
Prix promoteur - Frais de notaire réduits - Normes RT2020
Les informations sur les risques auxquels ce bien est exposé sont disponibles sur le site Géorisques : www.georisques.gouv.fr
Copropriété de 17 lots - dont 15 lots habitation. (Pas de procédure en cours).

Charges annuelles : 691 euros.

Dépenses énergétiques

A B C D E F G logement très performant logement extrêmement peu performant Non requis
A B C D E F G emissions de CO₂ très importantes peu d'émission de CO₂ Non requis

Localisation du bien

Contactez-nous

Contactez un conseiller par téléphone ou
laissez-nous un message via notre formulaire.

02 99 32 43 86

Simulation financière
Montant de votre prêt Montant du prêt
Durée de votre prêt Durée du prêt
Taux d'intérêt avant négociation Taux d'intérêts
Montant du prêt
Durée du prêt
Mensualités

 Recharger Contactez-nous

Biens similaires

A B C D E F G logement très performant logement extrêmement peu performant Non requis
A B C D E F G emissions de CO₂ très importantes peu d'émission de CO₂ Non requis
Affichage :