Achat Appartement 5 pièce(s) 102 m2
En vous inscrivant sur le site du cabinet Moraine vous bénéficierez de nombreux services complémentaires. L'inscription est totalement gratuite et ne vous engage rien.
Se connecterPrésentation du bien
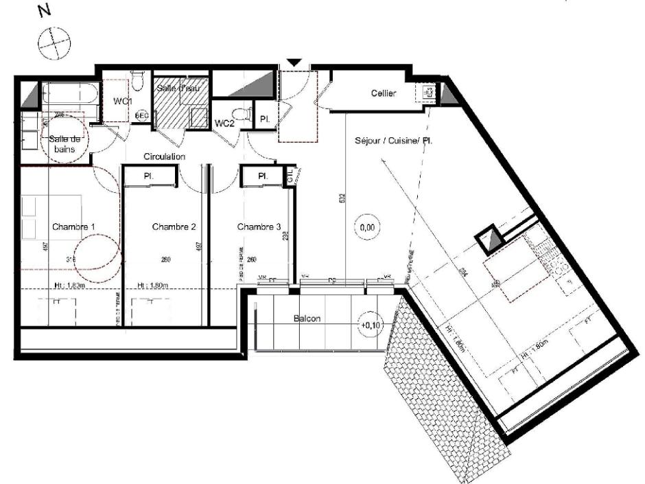
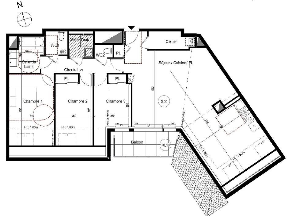
VENDU - CABINET MORAINE - SAINT MALO - Appartement 5 pièces Sud 3ème étage et dernier étage - balcon de 9.17 m² garage ! et stationnement privatif
Prix taux de tva 5.5% - conditions nous consulter.
Proche de St Servan, à 1.6 km de la Gare, non loin des plages (1.9km) et de l'Intra-Muros, à proximité des commodités et commerces, secteur calme, dans une résidence aux dernières normes RT2012, d'architecture contemporaine, appartement 5 pièces Exposé Sud comprenant : une entrée avec placard, séjour salon avec cuisine ouverte, arrière cuisine, 3 chambres, salle de bains, salle d'eau, 2 wcs indépendants. Grand balcon de 9.17m², Garage et Stationnement privatif  Frais de notaire réduits- prix promoteur-  www.immobilier-moraine.fr 02 99 32 43 86
Copropriété de 19 lots (Pas de procédure en cours).
Charges annuelles : 1450 euros.
Dépenses énergétiques
Localisation du bien
Contactez-nous
          Contactez un conseiller par téléphone ou
          laissez-nous un message via notre formulaire.
        
 
 
 
 
 
 
 
 
