Buy Apartment 5 room(s) 102 m2
By registering on Cabinet Moraine website, you will benefit from numerous additional services. Registration is completely free and does not commit you to anything.
Log inProperty description
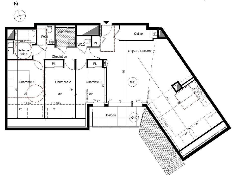
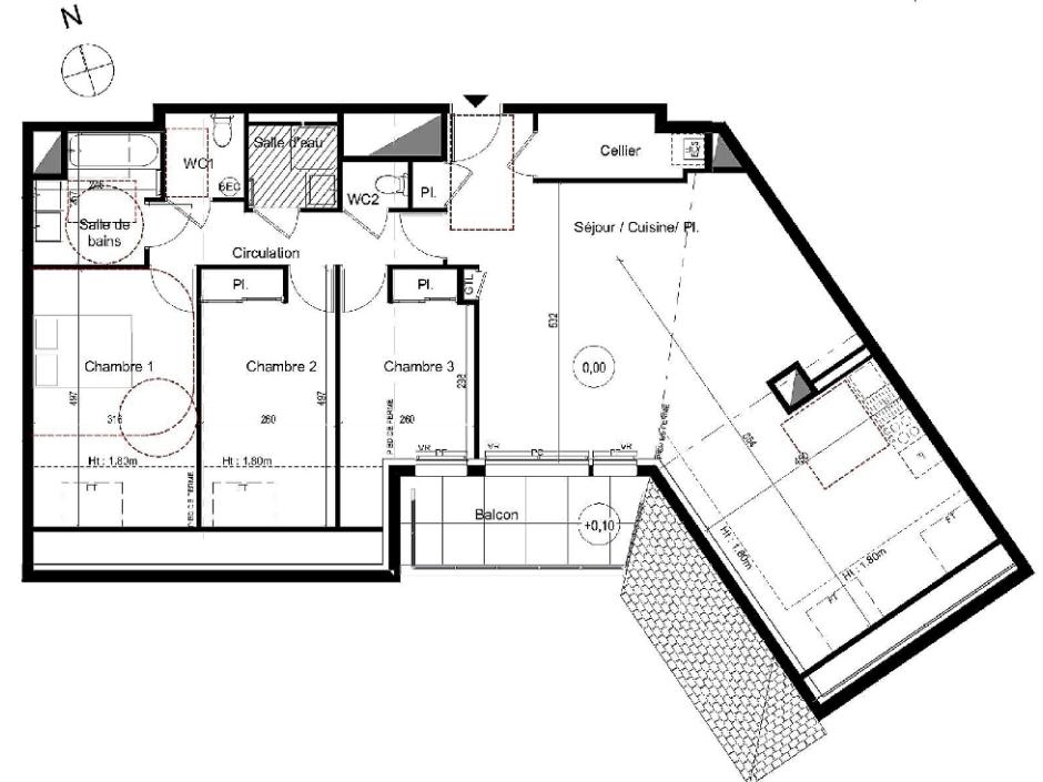
CABINET MORAINE - SAINT MALO - South 5 room apartment 3rd floor and top floor - 9.17 sqm balcony garage! and private parking Price VAT rate 5.5% - contact us for conditions. Close to St Servan, 1.6 km from the train station, not far from the beaches (1.9km) and the Intra-Muros, close to amenities and shops, quiet area, in a residence meeting the latest RT2012 standards, of contemporary architecture , 5-room apartment facing South comprising: an entrance with cupboard, living room with open kitchen, utility room, 3 bedrooms, bathroom, shower room, 2 separate toilets. Large balcony of 9.17sqm, Garage and private parking Reduced notary fees - promoter price - www.immobilier-moraine.fr 02 99 32 43 86
Condominiums of 19 units (No proceedings in progress). Annual expenses : 1450  euros.
 
 
 
 
 
 
 
 
