Achat Appartement 3 pièce(s) 65 m2
En vous inscrivant sur le site du cabinet Moraine vous bénéficierez de nombreux services complémentaires. L'inscription est totalement gratuite et ne vous engage rien.
Se connecterPrésentation du bien
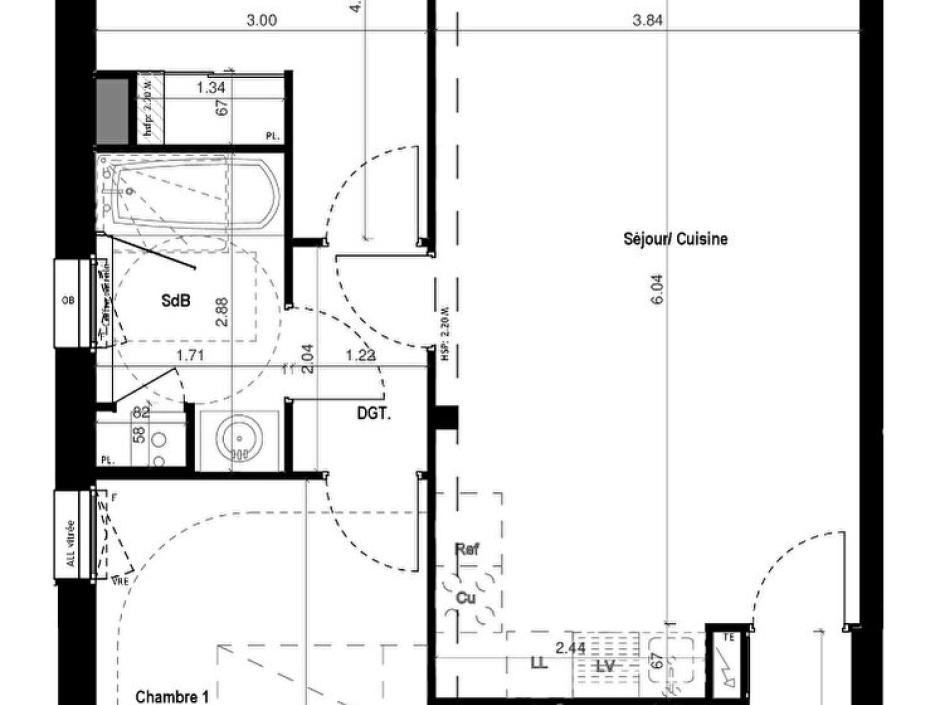
VITRÉ - Centre ville - Appartement 3 pièces de 65.55m² - 2ème étage - ascenseur - loggia 6.23m² - stationnement en sous-sol sécurisé.
Au sein d'un résidence contemporaine en plein centre ville de Vitré, à proximité immédiate des commerces, des commodités et des transports, appartement 3 pièces de 65.55m², situé au 2ème étage avec ascenseur comprenant : une entrée avec placard, un séjour salon avec cuisine ouverte, donnant accès à une loggia de 6.23m², deux chambres avec placard ou dressing, salle de bains, wc indépendant. Stationnement en sous-sol sécurisé. Prix promoteur - frais de notaire réduits. Les informations sur les risques auxquels ce bien est exposé sont disponibles sur le site Géorisques : www.georisques.gouv.fr. Photos non contractuelles - Suggestions d'aménagements.
Copropriété de 65 lots - dont 65 lots habitation.
Charges annuelles : 936 euros.
Dépenses énergétiques
Localisation du bien
Contactez-nous
Contactez un conseiller par téléphone ou
laissez-nous un message via notre formulaire.