Achat Appartement 4 pièce(s) 109 m2
En vous inscrivant sur le site du cabinet Moraine vous bénéficierez de nombreux services complémentaires. L'inscription est totalement gratuite et ne vous engage rien.
Se connecterPrésentation du bien
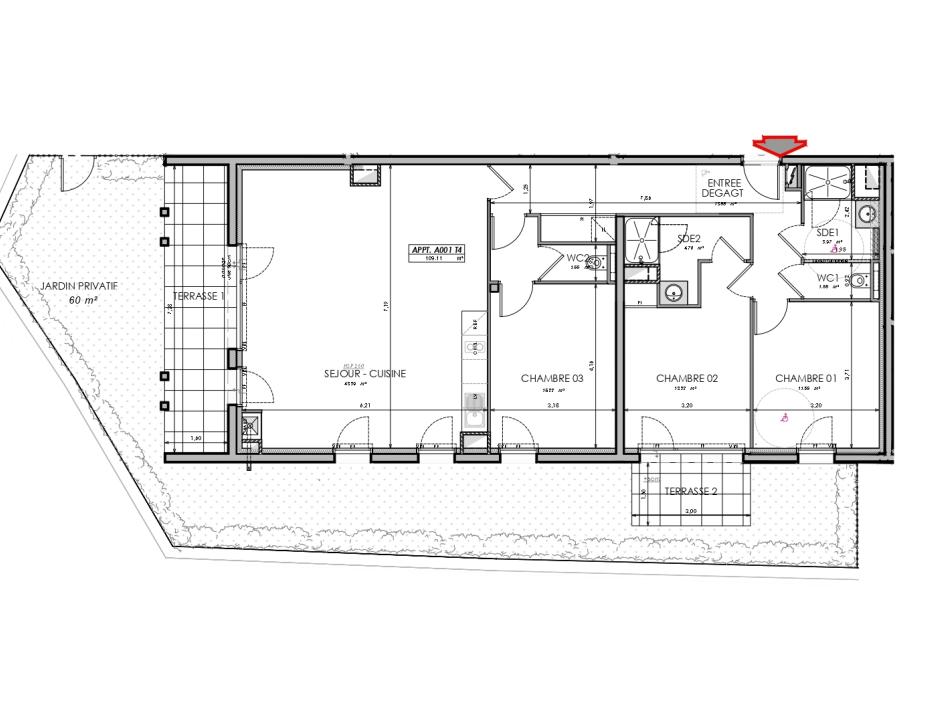
Saint-Malo - Appartement 4 pièces 109.11m² - Sud - jardin de 60m² - terrasses de 11 et 4 m²- garage et stationnement.
A Saint-Malo, à 1.8 km de l'hyper centre de Paramé, découvrez cet appartement de 4 pièces de 109.11m², exposé plein Sud, situé au rez-de-chaussée d'une résidence contemporaine conforme aux dernières normes environnementales (RE 2020). L'espace de vie se compose d'une entrée avec placard et dégagement, d'un séjour lumineux avec cuisine ouverte, prolongé par une terrasse de 11 m², trois chambres, deux salles d'eau et 2 wc indépendants. Ce bien dispose d'un garage en sous-sol sécurisé, d'une place de parking privative en extérieur. Les points forts de cet appartement : Haute performance énergétique : isolation renforcée et équipements innovants pour des économies au quotidien - A seulement 3,5 km de la mer et des plages emblématiques de Saint-Malo. - Vie pratique : commerces, supermarchés, boulangeries, marché bihebdomadaire, bureau de poste, coopérative bio, pôle médical Cap Sud et pharmacie à proximité - Mobilité : 2 lignes de bus et la gare TGV à moins de 10 minutes. Prix promoteur - frais de notaire réduits - Les informations sur les risques auxquels ce bien est exposé sont disponibles sur le site Géorisques : www.georisques.gouv.fr. Photos non contractuelles - Suggestions d'aménagements
Copropriété de 39 lots - dont 39 lots habitation.
Charges annuelles : 1569 euros.
Dépenses énergétiques
Localisation du bien
Contactez-nous
Contactez un conseiller par téléphone ou
laissez-nous un message via notre formulaire.