Achat Appartement 3 pièce(s) 64 m2
En vous inscrivant sur le site du cabinet Moraine vous bénéficierez de nombreux services complémentaires. L'inscription est totalement gratuite et ne vous engage rien.
Se connecterPrésentation du bien
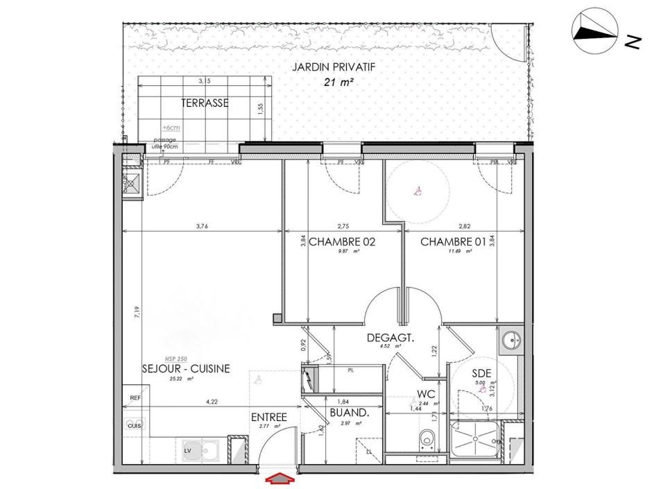
Saint-Malo - Appartement 3 pièces de 64.29m² Ouest - terrasse de 5m² et jardin de 21m² - stationnement en sous-sol sécurisé.
A Saint-Malo, à seulement 1,8 km du centre de Paramé, cet appartement de trois pièces, d'une surface de 64,29 m², bénéficie d'une agréable exposition ouest. Il s'inscrit au sein d'une résidence contemporaine répondant aux dernières exigences de la norme RE 2020, et s'ouvre sur un jardin privatif de 21 m² prolongé par une terrasse. L'espace intérieur, conçu avec soin pour conjuguer confort et praticité, se compose d'une entrée, d'une buanderie, puis d'un séjour-salon lumineux avec cuisine ouverte, en continuité avec une terrasse de 5 m² et le jardin. Un dégagement agrémenté de rangements dessert deux chambres, une salle d'eau ainsi qu'un WC indépendant. Ce bien est complété par un stationnement sécurisé en sous-sol, garantissant un confort de vie optimal au quotidien. L'environnement offre une qualité de vie appréciable, avec de nombreux commerces et services accessibles à proximité : supermarchés, boulangeries, marché bihebdomadaire, bureau de poste, coopérative biologique, ainsi que le pôle médical Cap Sud et une pharmacie. Côté mobilité, deux lignes de bus desservent le secteur et la gare TGV se situe à moins de 10 minutes.Prix promoteur - frais de notaire réduits - Les informations sur les risques auxquels ce bien est exposé sont disponibles sur le site Géorisques : www.georisques.gouv.fr. Photos non contractuelles - Suggestions d'aménagements
Copropriété de 39 lots - dont 39 lots habitation.
Charges annuelles : 921 euros.
Dépenses énergétiques
Localisation du bien
Contactez-nous
Contactez un conseiller par téléphone ou
laissez-nous un message via notre formulaire.