Achat Appartement 1 pièce(s) 35 m2
En vous inscrivant sur le site du cabinet Moraine vous bénéficierez de nombreux services complémentaires. L'inscription est totalement gratuite et ne vous engage rien.
Se connecterPrésentation du bien
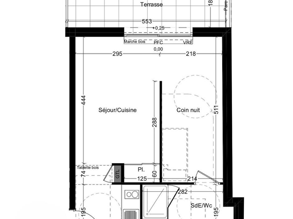
RENNES -  St Hélier -  Appartement 1 pièce de 35.53m² - terrasse de 10.05m² - 1er étage - ascenseur.
Idéalement situé à St Hélier, à proximité des commerces, de la gare, des arrêts de bus et du métro, cet appartement bénéficie d'une excellente accessibilité aux lignes de bus à proximité. Au sein d'une résidence moderne avec ascenseur, cet appartement 1 pièce  de 35.53 m², situé au 1er étage, offre un agencement fonctionnel. Il se compose d'un séjour salon avec cuisine ouverte, donnant accès à une terrasse de 10.05m², d'un coin nuit, d'une salle d'eau avec WC. Prix promoteur - frais de notaire réduits. Les informations sur les risques auxquels ce bien est exposé sont disponibles sur le site Géorisques : www.georisques.gouv.fr. Photos non contractuelles - Suggestions d'aménagements
Copropriété de 33 lots - dont 33 lots habitation. (Pas de procédure en cours).
Charges annuelles : 500 euros.
Dépenses énergétiques
Localisation du bien
Contactez-nous
          Contactez un conseiller par téléphone ou
          laissez-nous un message via notre formulaire.
        
 
 
 
 
 
 
 
 
