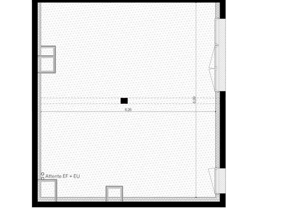
Achat Bureau pièce(s) 42 m2
En vous inscrivant sur le site du cabinet Moraine vous bénéficierez de nombreux services complémentaires. L'inscription est totalement gratuite et ne vous engage rien.
Se connecterPrésentation du bien
VITRE - local bureau de 42.59m² - rez-de-chaussée - stationnement privatif
Idéalement situé à seulement 650 mètres de la gare, ce bureau bénéficie d'un emplacement privilégié, à proximité immédiate des commerces et des commodités. Niché au rez-de-chaussée d'une résidence moderne répondant aux dernières normes en vigueur, il offre un cadre de travail confortable et fonctionnel. Un stationnement sécurisé en sous-sol est mis à votre disposition. Proposé au prix promoteur avec des frais de notaire réduits, ce bien constitue une excellente opportunité. Les informations sur les risques auxquels ce bien est exposé sont disponibles sur le site Géorisques : www.georisques.gouv.fr.
Photos non contractuelles, suggestions d'aménagements
Copropriété de 32 lots - dont 30 lots habitation. (Pas de procédure en cours).
Charges annuelles : 633 euros.
Dépenses énergétiques
Localisation du bien
Contactez-nous
Contactez un conseiller par téléphone ou
laissez-nous un message via notre formulaire.