Achat Appartement 5 pièce(s) 116 m2
En vous inscrivant sur le site du cabinet Moraine vous bénéficierez de nombreux services complémentaires. L'inscription est totalement gratuite et ne vous engage rien.
Se connecterPrésentation du bien
CABINET MORAINE - RENNES PROCHE CENTRE VILLE - BORDS DE VILAINE - Appartement 5 pièces Sud Ouest avec terrasse de 56.80m² - 2ème étage - garage - ascenseur et cave.
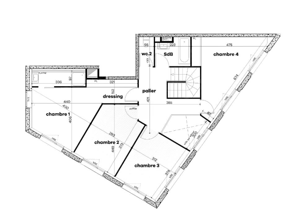
Non loin du centre-ville et de la gare TGV, à proximité des transports et commodités, dans un nouveau quartier résidentiel Bords de la Vilaine bénéficiant d'un espace naturel de 4ha pour les loisirs ou promenades, dans une résidence de standing et d'architecture contemporaine, situé au 2ème étage avec ascenseur, appartement 5 pièces de 116.20m² exposé Sud Ouest, comprenant : une entrée avec placard, vaste séjour salon ouvrant sur une belle terrasse, cuisine ouverte, 4 chambres, salle de bains, 2 wcs, autre terrasse... Garage et cave. - Frais de notaire réduits - prix promoteur - normes RT2012
www.immobilier-moraine.fr 02 99 32 43 86
Copropriété de 48 lots.
Charges annuelles : 2091 euros.
Dépenses énergétiques
Localisation du bien
Contactez-nous
Contactez un conseiller par téléphone ou
laissez-nous un message via notre formulaire.