Aller au contenu principal

Achat Appartement 2 pièce(s) 42 m2

239 133 €
Rennes
(
35000
)
60697-A406

En vous inscrivant sur le site du cabinet Moraine vous bénéficierez de nombreux services complémentaires. L'inscription est totalement gratuite et ne vous engage rien.

Se connecter
2
Rooms
1
Chambre(s)
42m²
Surface

Présentation du bien

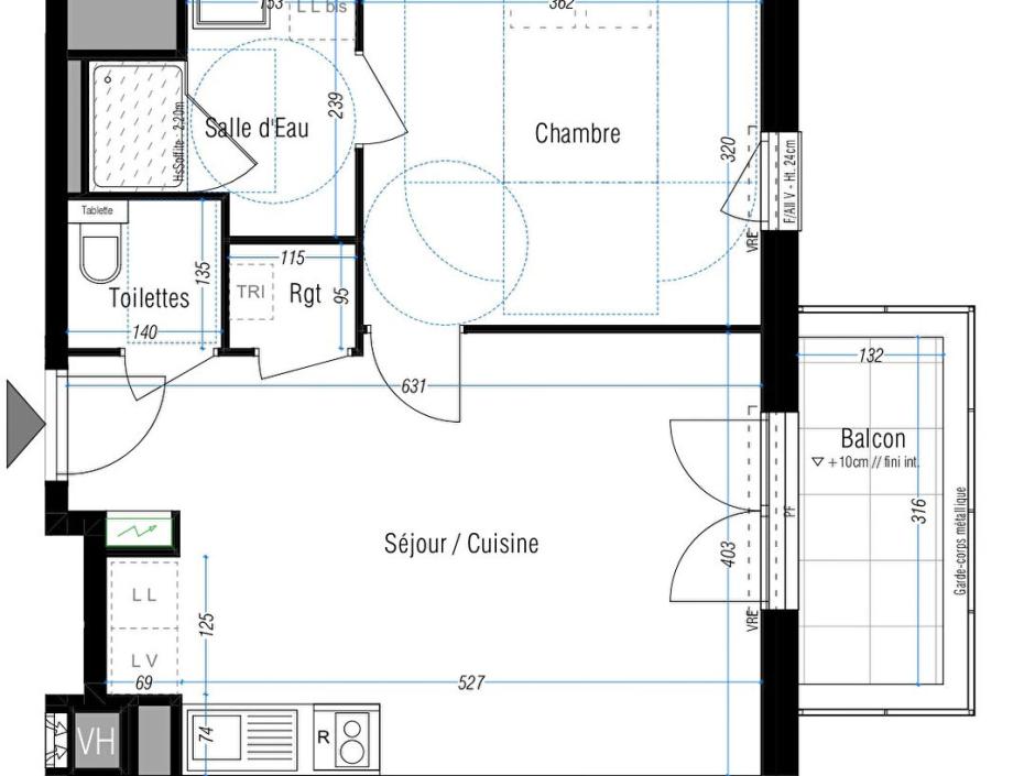
RENNES - Gayeulles / Jeanne d'Arc - Appartement 2 pièces de 42.37m² - 4ème étage - ascenseur - balcon de 4.20m² - stationnement en sous-sol sécurisé.
Proche des Gayeulles, dans le quartier Jeanne d'Arc, cet appartement deux-pièces profite d'un emplacement intéressant, à deux pas du métro, permettant de rejoindre rapidement le centre-ville (Sainte-Anne en 10 minutes, Gare de Rennes en 15 minutes). Proche des commerces, écoles et transports en commun, Situé au 4ème étage avec ascenseur, cet appartement de 42.37 m² comprend une entrée avec placard/rangement, un séjour salon avec cuisine ouverte donnant sur un balcon de 4.20 m², une chambre, une salle d'eau et wc indépendant. Une place de stationnement sécurisée en sous-sol est incluse. Atout supplémentaire : le chauffage est assuré par le réseau de chaleur urbain, une solution à la fois économique et écologique. Prix taux de tva 5.5% - conditions nous consulter.
N'attendez plus, contactez-nous dès maintenant pour en savoir plus et réserver votre futur appartement ! Prix promoteur - Les informations sur les risques auxquels ce bien est exposé sont disponibles sur le site Géorisques : www.georisques.gouv.fr. Photos non contractuelles - Suggestions d'aménagements
Copropriété de 43 lots - dont 43 lots habitation. (Pas de procédure en cours).

Charges annuelles : 604 euros.

Dépenses énergétiques

A B C D E F G logement très performant logement extrêmement peu performant Non requis
A B C D E F G emissions de CO₂ très importantes peu d'émission de CO₂ Non requis

Localisation du bien

Contactez-nous

Contactez un conseiller par téléphone ou
laissez-nous un message via notre formulaire.

02 99 32 43 86

Simulation financière
Montant de votre prêt Montant du prêt
Durée de votre prêt Durée du prêt
Taux d'intérêt avant négociation Taux d'intérêts
Montant du prêt
Durée du prêt
Mensualités

 Recharger Contactez-nous

Biens similaires

A B C D E F G logement très performant logement extrêmement peu performant Non requis
A B C D E F G emissions de CO₂ très importantes peu d'émission de CO₂ Non requis
Affichage :