Achat Appartement 2 pièce(s) 48 m2
En vous inscrivant sur le site du cabinet Moraine vous bénéficierez de nombreux services complémentaires. L'inscription est totalement gratuite et ne vous engage rien.
Se connecterPrésentation du bien
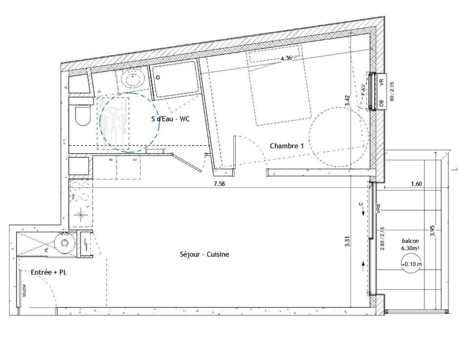
ORGÈRES - Appartement 2 pièces 48.66m² Sud - 2ème étage - ascenseur - balcon 6.30m² - stationnement en sous-sol sécurisé.
Parfaitement implanté au sud de Rennes Métropole, dans la charmante commune d'Orgères, cet appartement de 48,66 m² est situé au 2? étage d'une résidence moderne et élégante. Avec son ascenseur et son accès sécurisé, cette résidence bénéficie d'une localisation stratégique, à deux pas des commerces, services, et commodités, offrant un cadre de vie alliant praticité et confort au quotidien. Orienté plein sud, cet appartement 2 pièces lumineux propose :
Une entrée avec un placard,
Un séjour avec cuisine ouverte, donnant accès au balcon de 6.30m².
Une chambre, une salle d'eau avec wc.
Une place de stationnement extérieure privative complète ce bien.
Que vous soyez à la recherche d'un cadre de vie convivial ou d'un investissement durable, cette résidence allie confort et sérénité dans une commune où il fait bon vivre.
Prix promoteur - Frais de notaire réduits - Normes RT2020
Les informations sur les risques auxquels ce bien est exposé sont disponibles sur le site Géorisques : www.georisques.gouv.fr
Copropriété de 17 lots - dont 15 lots habitation. (Pas de procédure en cours).
Charges annuelles : 691 euros.
Dépenses énergétiques
Localisation du bien
Contactez-nous
Contactez un conseiller par téléphone ou
laissez-nous un message via notre formulaire.