Aller au contenu principal

Achat Local d'activité pièce(s) 43 m2

159 000 €
Vannes
(
56000
)
59802-11

En vous inscrivant sur le site du cabinet Moraine vous bénéficierez de nombreux services complémentaires. L'inscription est totalement gratuite et ne vous engage rien.

Se connecter
43m²
Surface

Présentation du bien

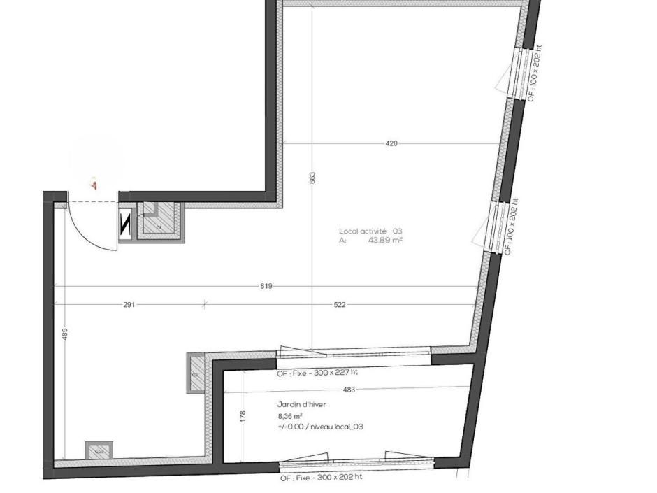
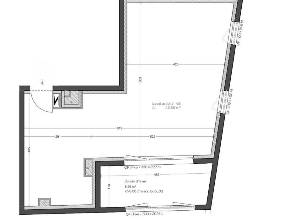
VANNES - LOCAL PROFESSIONNEL OU BUREAU DE 43,89m² - 1ER ÉTAGE - LOGGIA DE 8,36m² - PARKING PRIVATIF
Sur un axe fréquenté avec transport en commun à proximité, à 2 kms de l'hyper centre-ville, découvrez ce local d'activité de 43,89m² situé au 1er étage d'une résidence répondant aux normes RT2020. Le bien dispose également d'une loggia de 8,36m² et d'un emplacement de stationnement extérieur privatif. L'accès à la cellule se fait aisément par ascenseur depuis le hall d'entrée de l'immeuble. Prix direct promoteur ? Frais de notaire réduits.
Pour consulter les informations relatives aux risques éventuels liés à ce bien, rendez-vous sur le site Géorisques : www.georisques.gouv.fr.
Photos non contractuelles, suggestions d'aménagements
Copropriété de 22 lots - dont 19 lots habitation. (Pas de procédure en cours).

Charges annuelles : 650 euros.

Dépenses énergétiques

A B C D E F G logement très performant logement extrêmement peu performant Non requis
A B C D E F G emissions de CO₂ très importantes peu d'émission de CO₂ Non requis

Localisation du bien

Contactez-nous

Contactez un conseiller par téléphone ou
laissez-nous un message via notre formulaire.

02 99 32 43 86

Simulation financière
Montant de votre prêt Montant du prêt
Durée de votre prêt Durée du prêt
Taux d'intérêt avant négociation Taux d'intérêts
Montant du prêt
Durée du prêt
Mensualités

 Recharger Contactez-nous

Biens similaires

A B C D E F G logement très performant logement extrêmement peu performant Non requis
A B C D E F G emissions de CO₂ très importantes peu d'émission de CO₂ Non requis
Affichage :