Achat Appartement 3 pièce(s) 71 m2
En vous inscrivant sur le site du cabinet Moraine vous bénéficierez de nombreux services complémentaires. L'inscription est totalement gratuite et ne vous engage rien.
Se connecterPrésentation du bien
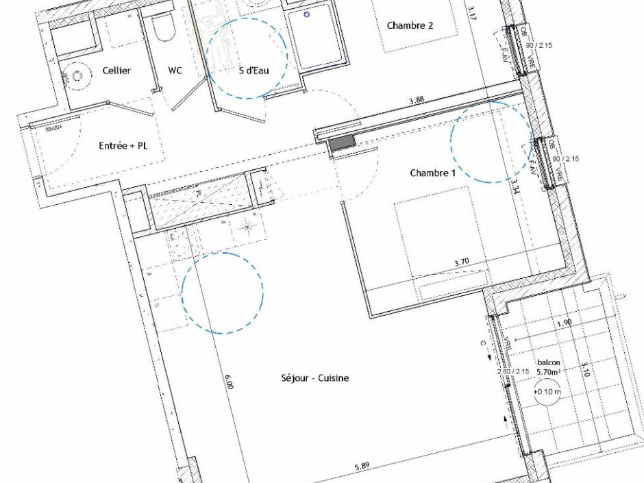
ORGERES - Appartement 3 pièces 71.07m² -1er étage - ascenseur - balcon 5.70m² - Garage sécurisé en sous-sol et stationnement extérieur - cellier
A Orgères, idéalement situé dans une résidence contemporaine, appartement 3 pièces de 71.07 m² au 1er étage avec ascenseur et accès sécurisé. Cette résidence bénéficie d'un emplacement privilégié, à proximité immédiate des commerces, services et commodités du quotidien. Elle offre ainsi un cadre de vie confortable où se mêlent praticité et commodité. Avec son orientation Sud, cet appartement baigné de lumière naturelle propose des prestations soignées et fonctionnelles : Une entrée accueillante avec un grand placard
Un séjour salon avec cuisine ouverte, prolongé par un balcon de 5.70 m²
Deux chambres confortables, une salle d'eau et WC indépendant
Un garage privé et sécurisé, situé en sous-sol et un parking extérieur complètent les atouts de ce bien. Prix promoteur - Frais de notaire réduits - Conformité aux normes RT2020
Les informations sur les éventuels risques liés à ce bien sont consultables sur le site Géorisques : www.georisques.gouv.fr
Copropriété de 17 lots - dont 15 lots habitation. (Pas de procédure en cours).
Charges annuelles : 1022 euros.
Dépenses énergétiques
Localisation du bien
Contactez-nous
Contactez un conseiller par téléphone ou
laissez-nous un message via notre formulaire.