Aller au contenu principal

Achat Appartement 3 pièce(s) 62 m2

369 000 €
Nantes
(
44000
)
54463-A601

En vous inscrivant sur le site du cabinet Moraine vous bénéficierez de nombreux services complémentaires. L'inscription est totalement gratuite et ne vous engage rien.

Se connecter
3
Rooms
2
Chambre(s)
62m²
Surface

Présentation du bien

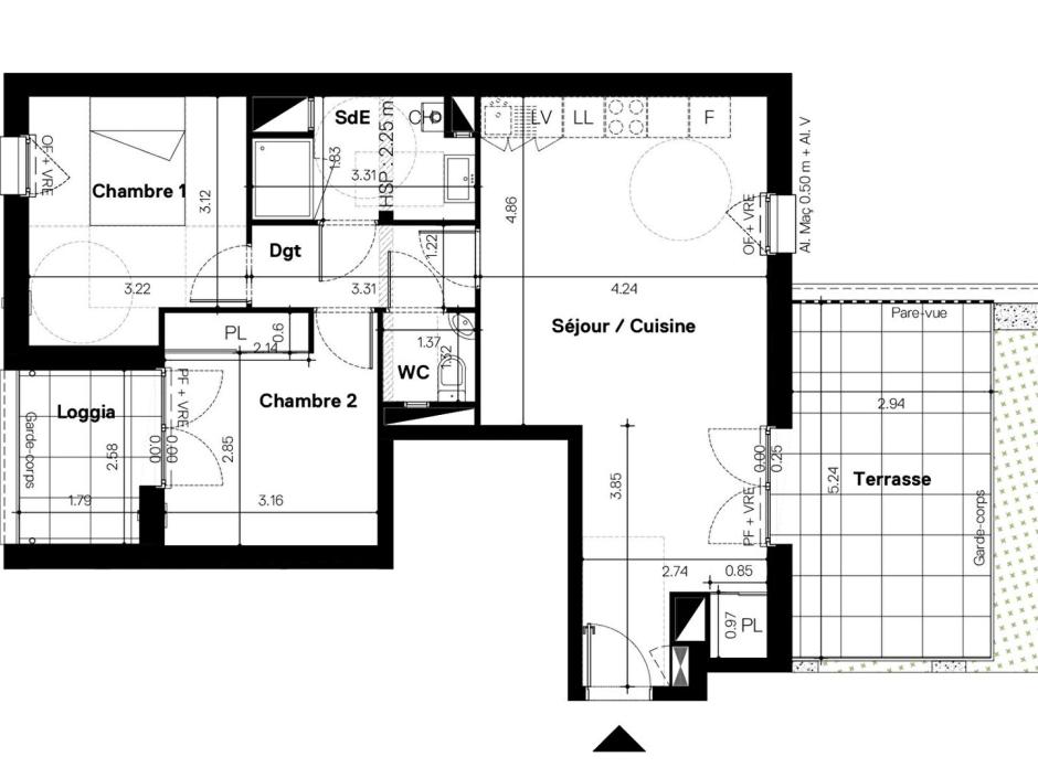
Nantes - Appartement 3 pièces 62.95m² - dernier étage - ascenseur - terrasse 15.79m² - loggia 4.61m² - stationnement
Situé au 6ème et dernier étage d'une résidence contemporaine à l'architecture soignée, cet appartement de 62.95 m² séduit par son cadre privilégié et sa belle luminosité. Idéalement situé à proximité des restaurants, des commerces, des écoles et des transports (tramway, bus), il permet de rejoindre rapidement le centre-ville tout en profitant d'un environnement agréable.
Dès l'entrée, un placard intégré optimise l'espace. La pièce de vie, conviviale et baignée de lumière, accueille un,espace cuisine ouverte et se prolonge d'une terrasse de 15,79 m², idéale pour profiter des beaux jours. L'espace nuit comprend deux chambres, dont une avec placard et accès à une loggia, ainsi qu'une salle d'eau et des wc indépendants.
Un appartement alliant confort et fonctionnalité, au coeur d'un cadre de vie recherché. Stationnement en sous-sol sécurisé. Prix promoteur - Les informations sur les risques auxquels ce bien est exposé sont disponibles sur le site Géorisques : www.georisques.gouv.fr. Photos non contractuelles - Suggestions d'aménagements
Copropriété de 39 lots - dont 39 lots habitation.

Charges annuelles : 892 euros.

Dépenses énergétiques

A B C D E F G logement très performant logement extrêmement peu performant Non requis
A B C D E F G emissions de CO₂ très importantes peu d'émission de CO₂ Non requis

Localisation du bien

Contactez-nous

Contactez un conseiller par téléphone ou
laissez-nous un message via notre formulaire.

02 99 32 43 86

Simulation financière
Montant de votre prêt Montant du prêt
Durée de votre prêt Durée du prêt
Taux d'intérêt avant négociation Taux d'intérêts
Montant du prêt
Durée du prêt
Mensualités

 Recharger Contactez-nous

Biens similaires

A B C D E F G logement très performant logement extrêmement peu performant Non requis
A B C D E F G emissions de CO₂ très importantes peu d'émission de CO₂ Non requis
Affichage :