Aller au contenu principal

Achat Appartement 2 pièce(s) 42 m2

224 000 €
Saint-Malo
(
35400
)
6104-B107

En vous inscrivant sur le site du cabinet Moraine vous bénéficierez de nombreux services complémentaires. L'inscription est totalement gratuite et ne vous engage rien.

Se connecter
2
Rooms
1
Chambre(s)
42m²
Surface

Présentation du bien

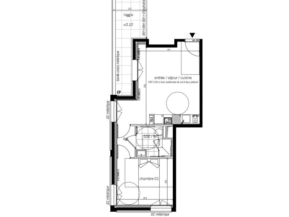
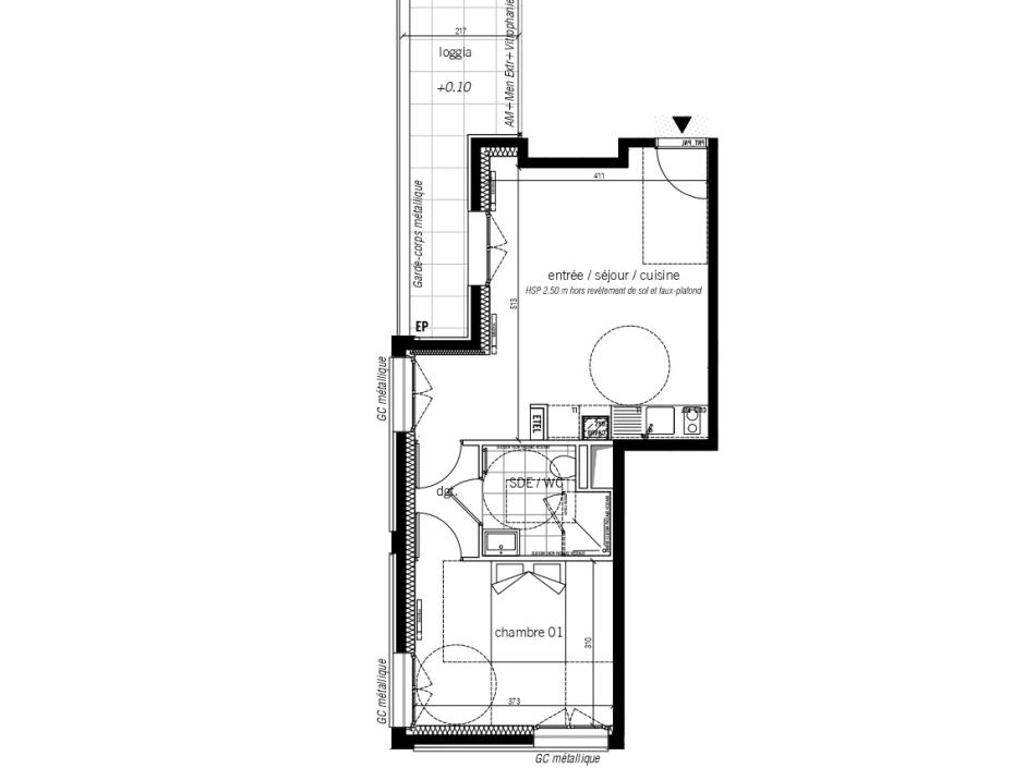
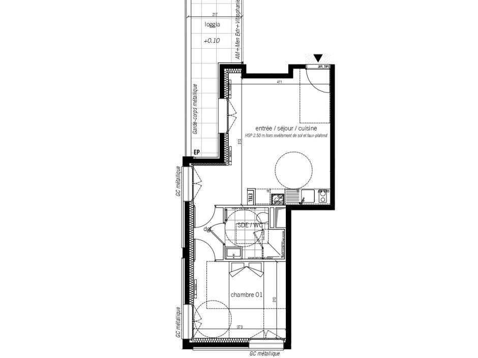
SAINT MALO - Appartement 2 pièces 42.50m² Ouest - 1er étage - ascenseur - loggia 9.60m² - stationnement en sous-sol sécurisé.
Situé à l'entrée de Saint-Malo, côté Saint-Servan, cet appartement au 1er étage d'une résidence contemporaine avec ascenseur bénéficie d'un emplacement intéressant. Il offre une bonne accessibilité : Rennes est accessible en 45 minutes via la voie express, et la gare TGV se trouve à seulement 9 minutes en voiture ou en bus. Toutes les commodités sont à proximité : boulangerie, supérette, centres commerciaux, ainsi que des établissements scolaires, de la maternelle au lycée. Il se compose d'un séjour salon avec cuisine ouverte, donnant accès à une loggia de 9.60m² à l'Ouest, une chambre, une salle d'eau avec wc. Stationnement en sous-sol sécurisé. Idéal pour un achat en principal - secondaire ou investissement locatif.
Prix promoteur - frais de notaire réduits - Les informations sur les risques auxquels ce bien est exposé sont disponibles sur le site Géorisques : www.georisques.gouv.fr. Photos non contractuelles - Suggestions d'aménagements
Copropriété de 40 lots - dont 40 lots habitation. (Pas de procédure en cours).

Charges annuelles : 604 euros.

Dépenses énergétiques

A B C D E F G logement très performant logement extrêmement peu performant Non requis
A B C D E F G emissions de CO₂ très importantes peu d'émission de CO₂ Non requis

Localisation du bien

Contactez-nous

Contactez un conseiller par téléphone ou
laissez-nous un message via notre formulaire.

02 99 32 43 86

Simulation financière
Montant de votre prêt Montant du prêt
Durée de votre prêt Durée du prêt
Taux d'intérêt avant négociation Taux d'intérêts
Montant du prêt
Durée du prêt
Mensualités

 Recharger Contactez-nous

Biens similaires

A B C D E F G logement très performant logement extrêmement peu performant Non requis
A B C D E F G emissions de CO₂ très importantes peu d'émission de CO₂ Non requis
Affichage :