Aller au contenu principal

Achat Appartement 2 pièce(s) 40 m2

185 000 €
Acigné
(
35690
)
6251-3205

En vous inscrivant sur le site du cabinet Moraine vous bénéficierez de nombreux services complémentaires. L'inscription est totalement gratuite et ne vous engage rien.

Se connecter
2
Rooms
1
Chambre(s)
40m²
Surface

Présentation du bien

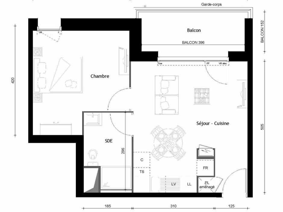
ACIGNE - Appartement 2 pièces 40.17m² Ouest - 2ème étage - ascenseur - balcon 6.11m² - stationnement.
Proche de Rennes et de Cesson-Sévigné, idéalement situé à Acigné, au sein d'une résidence conforme aux dernières normes RT 2020, cet appartement de 2 pièces développe une surface de 40.17 m². Situé au 2ème étage avec ascenseur, il se compose d'une entrée avec placard, d'un séjour salon exposé au Ouest avec cuisine ouverte donnant accès à un balcon de 6.11 m², d'une chambre, d'une salle d'eau avec WC. Une place de stationnement sécurisée en sous-sol complète ce bien. Les commodités sont accessibles à pied : boulangerie, des commerces, écoles maternelles et élémentaires, accueil périscolaire ainsi qu'un arrêt de bus du réseau STAR... Un environnement idéal pour vivre, grandir et s'installer durablement.
Prix promoteur - frais de notaire réduits.
Les informations sur les risques auxquels ce bien est exposé sont disponibles sur le site Géorisques : www.georisques.gouv.fr
Copropriété de 53 lots - dont 53 lots habitation.

Charges annuelles : 576 euros.

Dépenses énergétiques

A B C D E F G logement très performant logement extrêmement peu performant Non requis
A B C D E F G emissions de CO₂ très importantes peu d'émission de CO₂ Non requis

Localisation du bien

Contactez-nous

Contactez un conseiller par téléphone ou
laissez-nous un message via notre formulaire.

02 99 32 43 86

Simulation financière
Montant de votre prêt Montant du prêt
Durée de votre prêt Durée du prêt
Taux d'intérêt avant négociation Taux d'intérêts
Montant du prêt
Durée du prêt
Mensualités

 Recharger Contactez-nous

Biens similaires

A B C D E F G logement très performant logement extrêmement peu performant Non requis
A B C D E F G emissions de CO₂ très importantes peu d'émission de CO₂ Non requis
Affichage :