Aller au contenu principal

Achat Appartement 4 pièce(s) 97 m2

Prix non communiqué
Rennes
(
35000
)
193-520

En vous inscrivant sur le site du cabinet Moraine vous bénéficierez de nombreux services complémentaires. L'inscription est totalement gratuite et ne vous engage rien.

Se connecter
4
Rooms
3
Chambre(s)
1
Salle(s) de bain
97m²
Surface

Présentation du bien

Vendu par l'Agence
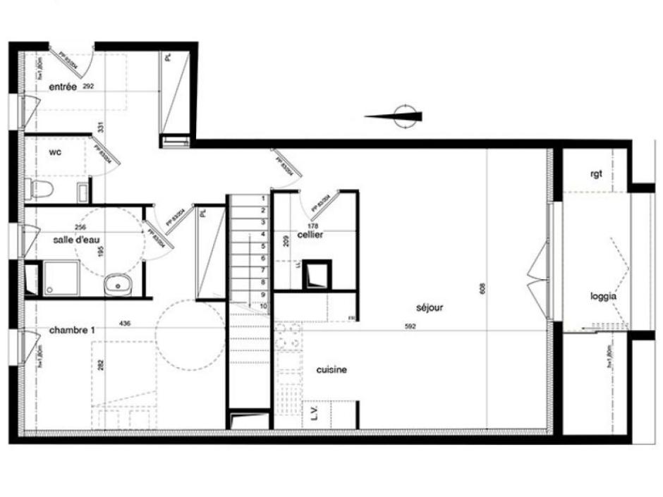
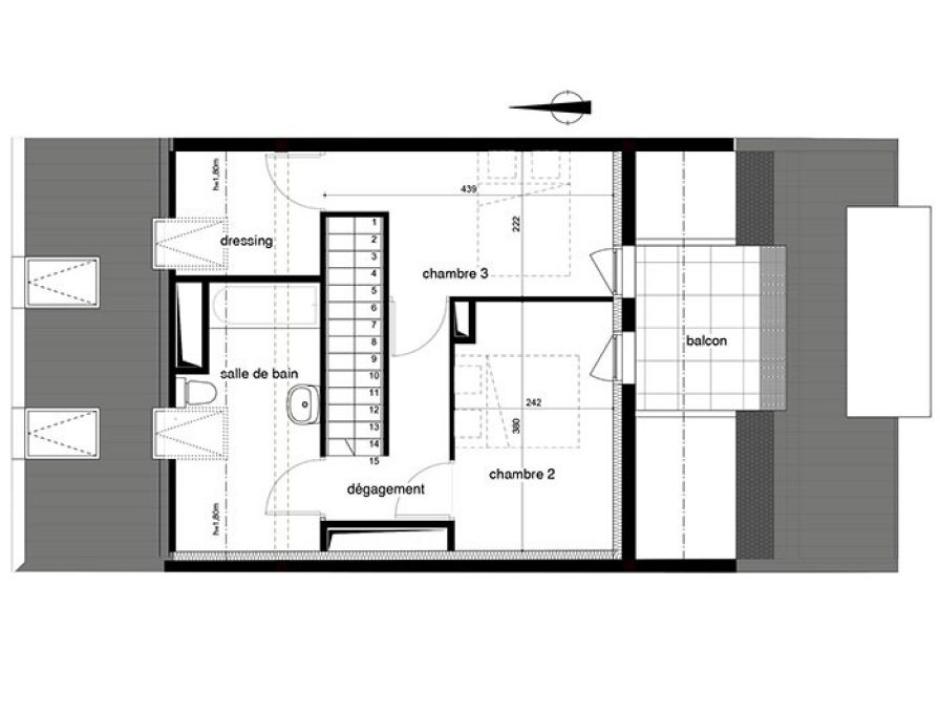
RENNES CENTRE VILLE APPARTEMENT NEUF DUPLEX PLEIN SUD - ASCENSEUR - DERNIER ETAGE - LOGGIA - BALCON - PARKING PRIVATIF
Idéalement située, à deux pas des commerces et de la rue Saint-Hélier, proche du Thabor et du centre ville, dans une résidence contemporaine neuve aux normes Bâtiment Basse Consommation RT2012, appartement duplex de 97,22m² situé au 5ème étage et dernier, exposé plein sud : comprenant une entrée, placard, séjour salon avec cuisine ouverte donnant sur une grande loggia, une chambre au rdc, salle d'eau, wc, cellier, à l'étage, deux chambres, dressing, salle de bains, balcon.
Ascenseur, parking privatif en sous-sol
A réserver rapidement!
Normes BBC RT 2012 02 99 32 43 86 -

Dépenses énergétiques

A B C D E F G logement très performant logement extrêmement peu performant Non communiqué
A B C D E F G emissions de CO₂ très importantes peu d'émission de CO₂ Non communiqué

Localisation du bien

Contactez-nous

Contactez un conseiller par téléphone ou
laissez-nous un message via notre formulaire.

02 99 32 43 86

Simulation financière
Montant de votre prêt Montant du prêt
Durée de votre prêt Durée du prêt
Taux d'intérêt avant négociation Taux d'intérêts
Montant du prêt
Durée du prêt
Mensualités

 Recharger Contactez-nous

Biens similaires

A B C D E F G logement très performant logement extrêmement peu performant Non communiqué
A B C D E F G emissions de CO₂ très importantes peu d'émission de CO₂ Non communiqué
Affichage :