Achat Appartement 2 pièce(s) 45 m2
En vous inscrivant sur le site du cabinet Moraine vous bénéficierez de nombreux services complémentaires. L'inscription est totalement gratuite et ne vous engage rien.
Se connecterPrésentation du bien
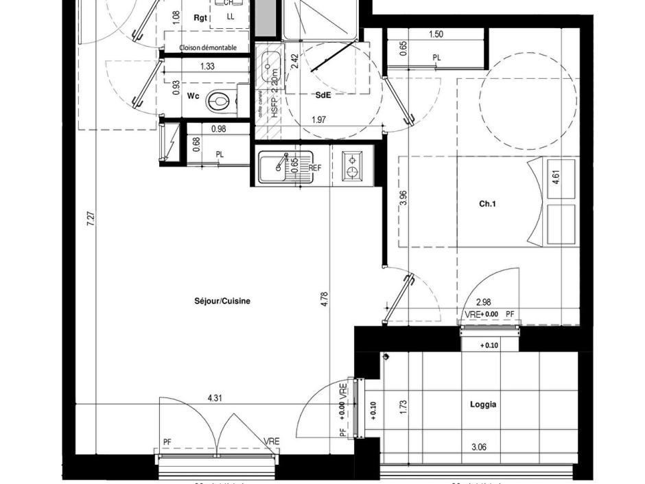
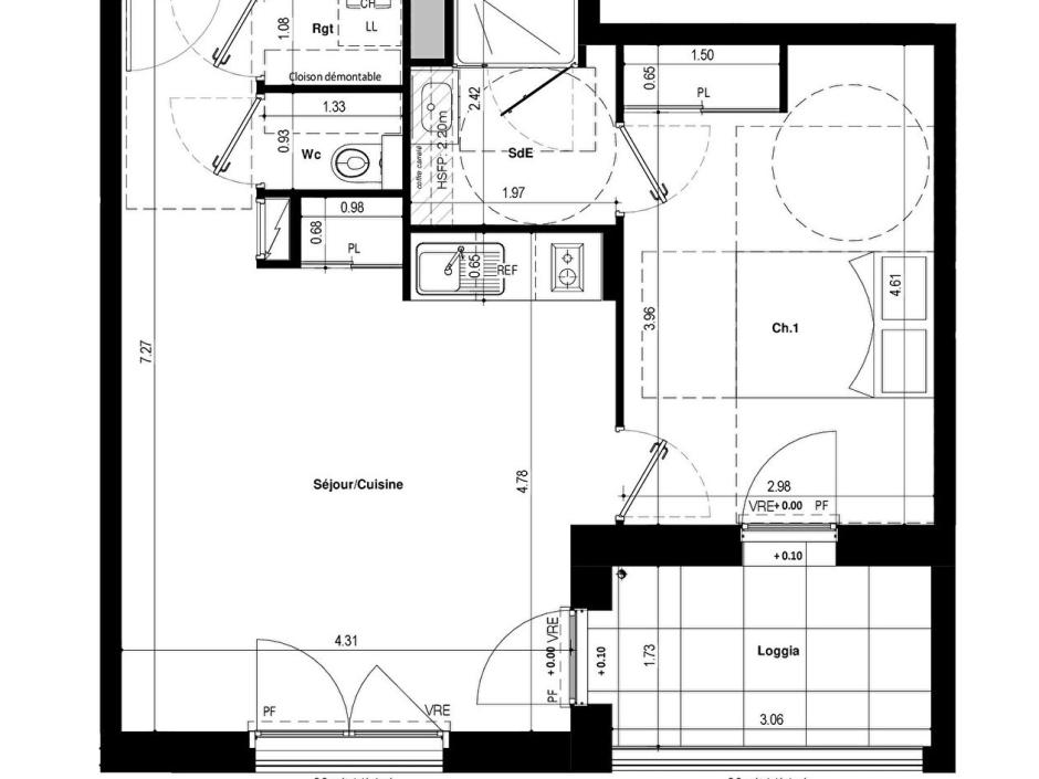
COURROUZE / ST JACQUES - A 500 mètres du métro - Appartement 2 pièces 45.59m² Ouest - 3ème etage - ascenseur - loggia - stationnement privé
Idéalement située, à 500 mètres du métro et des transports, découvrez cet appartement de 2 pièces, d'une surface de 45,59 m², situé au 3ème étage avec ascenseur d'une résidence moderne répondant aux dernières normes 2020. Implanté au coeur d'un quartier dynamique, il offre un cadre de vie agréable avec un accès immédiat aux commerces, écoles, services et infrastructures. Sa situation stratégique garantit une mobilité optimale grâce à la proximité de la ligne B du métro, des lignes de bus et des pistes cyclables. Baigné de lumière grâce à son exposition plein Ouest, cet appartement se compose d'une entrée avec placard, d'un séjour avec cuisine ouverte donnant sur une loggia de 5,30 m², d'une chambre avec placard et salle d'eau privative, ainsi que d'un cellier/buanderie et d'un WC indépendant. Stationnement en sous-sol sécurisé. Ne manquez pas cette opportunité idéale pour un investissement ou une première acquisition, alliant confort, modernité et praticité. Contactez-nous dès aujourd'hui pour plus d'informations ! Prix promoteur - Frais de notaire réduits
Les informations relatives aux risques auxquels ce bien est exposé sont disponibles sur le site Géorisques : www.georisques.gouv.fr. Photos non contractuelles, suggestions d'aménagements
Copropriété de 24 lots - dont 24 lots habitation. (Pas de procédure en cours).
Charges annuelles : 648 euros.
Dépenses énergétiques
Localisation du bien
Contactez-nous
Contactez un conseiller par téléphone ou
laissez-nous un message via notre formulaire.