Aller au contenu principal

Achat Maison 4 pièce(s) 84 m2

505 000 €
Saint-Jacques-de-la-Lande
(
35136
)
60454-M002

En vous inscrivant sur le site du cabinet Moraine vous bénéficierez de nombreux services complémentaires. L'inscription est totalement gratuite et ne vous engage rien.

Se connecter
4
Rooms
3
Chambre(s)
1
Salle(s) de bain
84m²
Surface

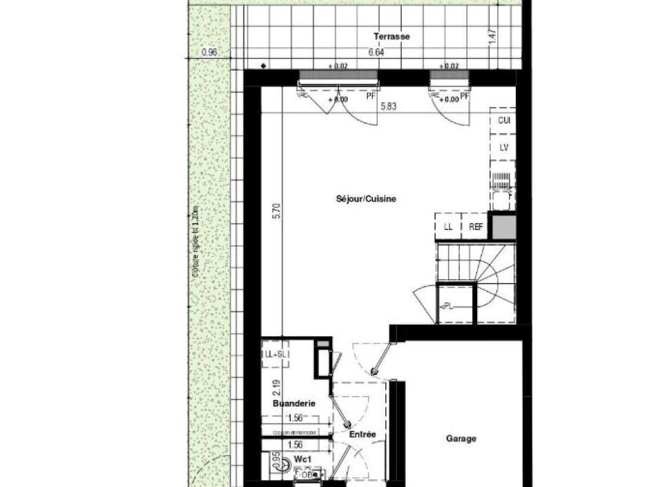
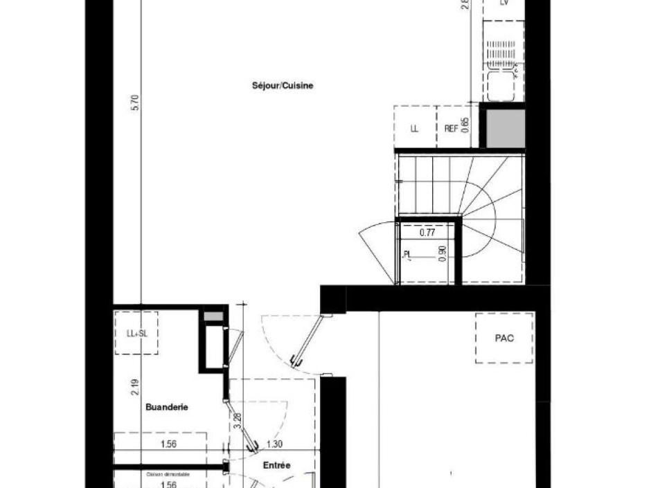
Présentation du bien

COURROUZE / ST JACQUES - MAISON 4 PIÈCES 84.90m² - jardin 53.39m² - garage et stationnement
Découvrez cette maison contemporaine de 84,90 m² RT 2020 - 4 pièces - avec un jardin à usage privatif de 53,39 m² et une terrasse de 9,74 m², accompagnés d'un garage et d'un stationnement privé. Idéalement située à seulement 500 mètres du métro ligne B et à proximité des écoles, commerces et infrastructures, elle séduit par son cadre de vie fonctionnel et pratique. Intégrée au sein d'un ensemble immobilier, elle se compose d'une entrée avec une buanderie, d'un lumineux séjour-salon agrémenté d'une cuisine ouverte, donnant sur la terrasse et l'espace extérieur. Un WC indépendant complète le rez-de-chaussée. A l'étage, trois chambres avec rangements /placards intégrés, une salle de bains équipée d'une double vasque ainsi qu'un second WC indépendant viennent parfaire cet agencement pensé pour allier confort et modernité. Prix promoteur ? Frais de notaire réduits. Pour toute information relative aux risques liés à ce bien, veuillez consulter le site Géorisques (www.georisques.gouv.fr).
Photos non contractuelles - Suggestions d'aménagements.
N'hésitez pas à nous contacter dès aujourd'hui pour en savoir davantage.
Copropriété de 24 lots - dont 24 lots habitation.

Charges annuelles : 1252 euros.

Dépenses énergétiques

A B C D E F G logement très performant logement extrêmement peu performant Non requis
A B C D E F G emissions de CO₂ très importantes peu d'émission de CO₂ Non requis

Localisation du bien

Contactez-nous

Contactez un conseiller par téléphone ou
laissez-nous un message via notre formulaire.

02 99 32 43 86

Simulation financière
Montant de votre prêt Montant du prêt
Durée de votre prêt Durée du prêt
Taux d'intérêt avant négociation Taux d'intérêts
Montant du prêt
Durée du prêt
Mensualités

 Recharger Contactez-nous

Biens similaires

A B C D E F G logement très performant logement extrêmement peu performant Non requis
A B C D E F G emissions de CO₂ très importantes peu d'émission de CO₂ Non requis
Affichage :