Aller au contenu principal

Achat Appartement 3 pièce(s) 62 m2

415 000 €
Saint-Malo
(
35400
)
6262-23

En vous inscrivant sur le site du cabinet Moraine vous bénéficierez de nombreux services complémentaires. L'inscription est totalement gratuite et ne vous engage rien.

Se connecter
3
Rooms
2
Chambre(s)
62m²
Surface

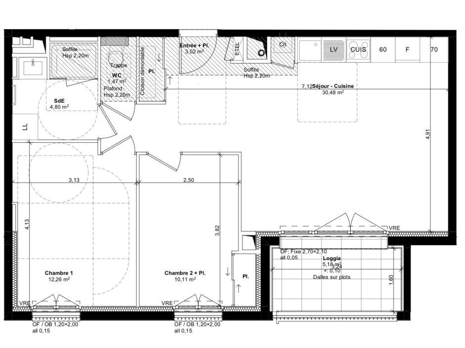
Présentation du bien

Saint Malo - 3 pièces 62.14m² Sud- loggia de 5.18m² - 2ème étage - ascenseur - stationnements en sous-sol sécurisés
A 900 mètres des plages, des commodités et des commerces, dans un quartier résidentiel au calme, au sein d' une résidence de standing aux dernières normes RT2020, alliant confort moderne et performance énergétique, au deuxième étage avec ascenseur, cet appartement de 3 pièces de 82.35 m² au Sud, se compose d' une entrée avec placard, d'un séjour salon avec cuisine ouverte donnant accès à une loggia de 5.18m², deux chambres, une salle d'eau, WC indépendant. Deux stationnements en sous-sol sécurisés complètent ce bien. Prestations de qualité : Performances énergétiques RT2020 - Accès sécurisé par badge et visiophone.. Prix promoteur - frais de notaire réduits. Les informations sur les risques auxquels ce bien est exposé sont disponibles sur le site Géorisques : www.georisques.gouv.fr.
Copropriété de 57 lots - dont 17 lots habitation.

Charges annuelles : 892 euros.

Dépenses énergétiques

A B C D E F G logement très performant logement extrêmement peu performant Non requis
A B C D E F G emissions de CO₂ très importantes peu d'émission de CO₂ Non requis

Localisation du bien

Contactez-nous

Contactez un conseiller par téléphone ou
laissez-nous un message via notre formulaire.

02 99 32 43 86

Simulation financière
Montant de votre prêt Montant du prêt
Durée de votre prêt Durée du prêt
Taux d'intérêt avant négociation Taux d'intérêts
Montant du prêt
Durée du prêt
Mensualités

 Recharger Contactez-nous

Biens similaires

A B C D E F G logement très performant logement extrêmement peu performant Non requis
A B C D E F G emissions de CO₂ très importantes peu d'émission de CO₂ Non requis
Affichage :