Achat Appartement 3 pièce(s) 60 m2
En vous inscrivant sur le site du cabinet Moraine vous bénéficierez de nombreux services complémentaires. L'inscription est totalement gratuite et ne vous engage rien.
Se connecterPrésentation du bien
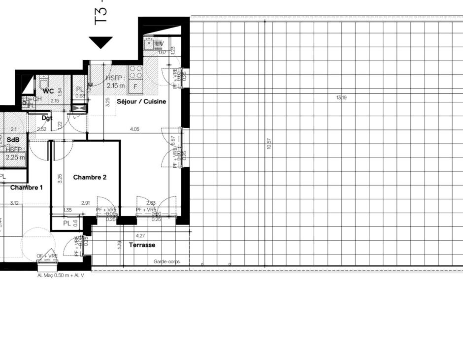
Nantes - Entre Erdre et La Loire - quartier Rond Point de Paris - Appartement 3 pièces 60.98m² Sud Est - 5ème étage - ascenseur - terrasse 146.98m² - stationnement sécurisé.
Dans un quartier dynamique à l'ambiance chaleureuse et préservée, offrant un cadre de vie idéal, entre la Loire et l'Erdre, la verdure, à proximité à pied : des restaurants, des services, piscine, écoles.. mais aussi des transports permettant de rejoindre très rapidement le centre-ville par le tramway, le bus, le chronobus, ou encore, à vélo.. proche d'un parc, dans une résidence de belle architecture aux dernières normes RT 2012, situé au 5ème étage, bel appartement 3 pièces de 60.98m² aspecté Sud-Est avec ascenseur, comprenant : une entrée avec placard, séjour salon avec cuisine ouverte, accès sur une terrasse de 146.98m², dégagement, deux chambres avec placard, salle de bains, wc indépendant. Stationnement en sous-sol sécurisé.
Prix promoteur - frais de notaire réduits - dernières normes RT2012.
Copropriété de 39 lots - dont 39 lots habitation.
Charges annuelles : 1000 euros.
Dépenses énergétiques
Localisation du bien
Contactez-nous
Contactez un conseiller par téléphone ou
laissez-nous un message via notre formulaire.