Skip to main content

Buy Apartment 2 room(s) 45 m2

257 000 €
Saint-Nazaire
(
44600
)
6212-A101

By registering on Cabinet Moraine website, you will benefit from numerous additional services. Registration is completely free and does not commit you to anything.

Log in
2
Rooms
1
Bedroom
45m²
Surface

Property description

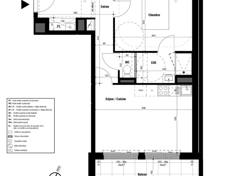
SAINT NAZAIRE City Center - 1-Bedroom Apartment 45.27sqm South Facing - 1st Floor - 7.51sqm Balcony. Ideally located just 100 meters from the beach, the seafront promenades, and the shops, services, and amenities of the city center, this contemporary residence offers an exceptional living environment where the ocean, nature, and urban conveniences blend perfectly. On the 1st floor with elevator access, discover this superb 1-bedroom apartment, facing due south. It comprises an entrance hall with a closet, a hallway, a bright living room with an open-plan kitchen leading onto a 7.51sqm balcony, a comfortable bedroom, a shower room, and a separate toilet. Compliant with the latest building standards, this property is eligible for zero-interest loans (PTZ) and furnished rental schemes (LMNP), and is suitable for a primary residence, a second home, or a rental investment. High-end features complete this apartment, guaranteeing lasting comfort. Individual gas heating. Developer price - notary fees included. Information regarding the risks to which this property is exposed is available on the Géorisques website: www.georisques.gouv.fr. Photos are for illustrative purposes only and are not contractual.
Condominiums of 29 units (No proceedings in progress). Annual expenses : 648 euros.

Energy expenditure

A B C D E F G high performance housing extremely inefficient housing Not required
A B C D E F G very high CO2 emissions low CO2 emissions Not required

Location of property

Contactez-nous

Contact an advisor by phone or
leave us a message by filling the form

02 99 32 43 86

Financial simulation
Your loan amount Loan amount
Your loan period Loan period
Interest rate before negotiation Interest rates
Loan amount
Loan period
Monthly payments

 Reload Contact us

Biens similaires

A B C D E F G high performance housing extremely inefficient housing Not required
A B C D E F G very high CO2 emissions low CO2 emissions Not required
Affichage :